Commerciale in affitto - Hinterbergstrasse 9, 6330 Cham
Perché amerai questa proprietà
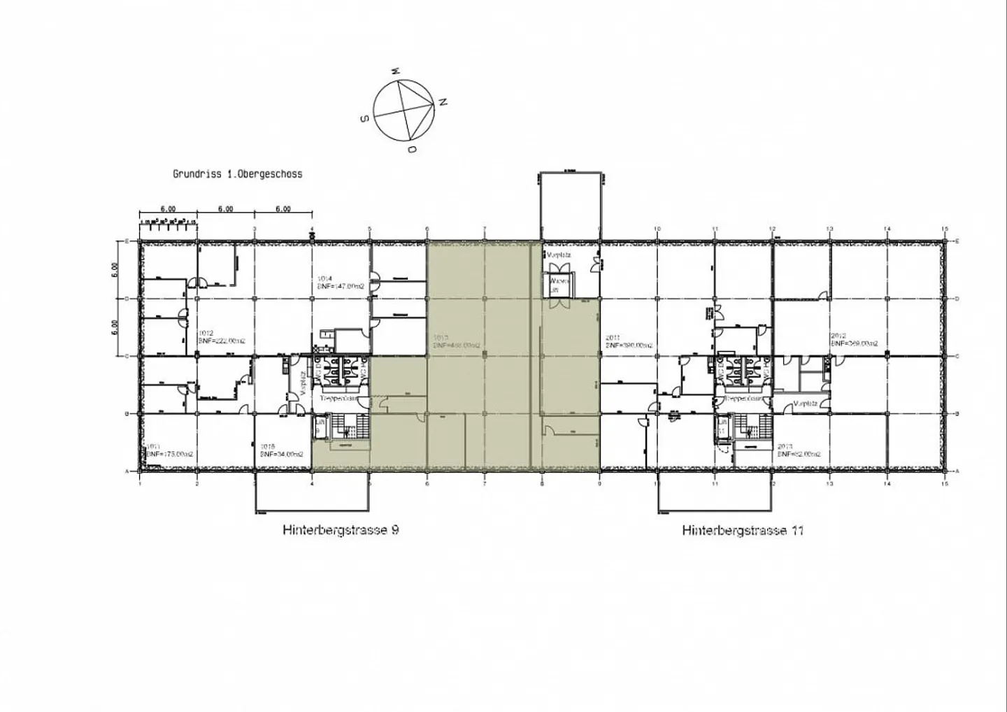
Spazio commerciale versatile
Luminoso con grandi finestre
Accesso diretto al montacarichi
Organizza una visita
Prenota una visita con Cornelia oggi!
Spazio commerciale versatile di 488 m² con estensione dell'ascensore merci...
L'edificio per uffici e attività commerciali di Hinterbergstrasse 9/11 si trova nell'area di Städtler Allmend a Cham. I collegamenti di trasporto per il traffico pubblico e individuale sono molto buoni. Nelle vicinanze ci sono diverse opzioni di ristorazione e shopping, facilmente raggiungibili a piedi.
I tuoi vantaggi a colpo d'occhio
Locali commerciali in sviluppo di baseSuperficie locativa orientata a est e ovestLuminoso grazie a diverse facciate di finestreAccesso diretto all'ascensore merci
Of...
Dettagli immobile
- Disponibile dal
- Su accordo
- Anno di costruzione
- 1981



