Spazio ufficio in affitto - Chemin Ami- Argand 9, 1290 Versoix
Perché amerai questa proprietà
Soffitti alti 3m
Layout flessibile
Posizione strategica
Organizza una visita
Prenota una visita con maison.work oggi!
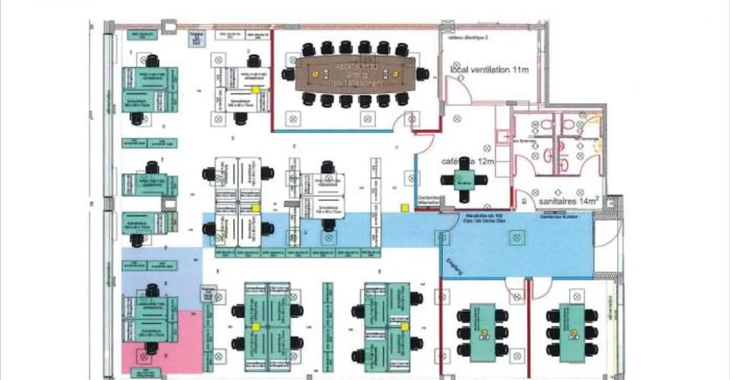
VERSOIX - Uffici luminosi di circa 262 m² - Piano terra
Disponibile - spazio ufficio di circa 262 m² al piano terra, ideale per aziende, agenzie, servizi, uffici satellite o studi medici.
Spazio funzionale e ben progettato con un'altezza del soffitto di 3 metri, circolazione fluida e reception indipendente.
Servizi:
- Hall d'ingresso/reception accogliente
- 3 uffici privati (formato modulare)
- 1 sala conferenze luminosa
- Spazio cucina/kitchenette
- Locale tecnico
- WC separati
Parcheggio (in aggiunt...
Ripartizione dei costi
- Affitto netto
- CHF 5’469
- Costi aggiuntivi
- CHF 100
- Totale delle locazioni
- CHF 5’469
Dettagli immobile
- Disponibile dal
- Su accordo



