Commerciale in affitto - Avenue De Champel 8c, 1206 Genève
Perché amerai questa proprietà
Ampia area reception
Accesso a cucina professionale
Finiture di alta qualità
Organizza una visita
Prenota una visita oggi!
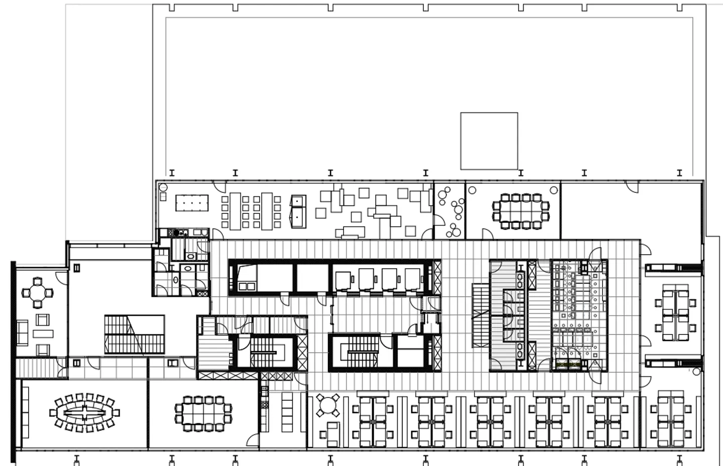
Disponibile a champel, uffici arredati di alta classe
All'interno di un edificio rappresentativo, gli spazi disponibili consentono condizioni di lavoro ottimali.
Caratteristiche dei locali
1° piano: 1.404 m2
2° piano: 943 m2
Controllo accessi
Ascensori
Finiture di qualità
Vetrate a tutta altezza
Mix open-space e uffici
Grande area reception con sala riunioni
Sistema di raffreddamento dell'aria tramite controsoffitto
Pavimento tecnico sopraelevato
Cablaggio informatico, rack IT e sala server climatizzata
Blocchi sanitari separati e doccia
Caffett...
Dettagli immobile
- Disponibile dal
- Su accordo
- Superficie abitabile
- 1404 m²
- Superficie utilizzabile
- 1404 m²



