1 / 2

Laboratorio in affitto - Lagerweg 8b, 4932 Lotzwil

-1° piano
CHF 210.-
-

Perché amerai questa proprietà

Dimensioni delle stanze flessibili

Prezzi di affitto accessibili

Posizione comoda

Organizza una visita

Prenota una visita con L. oggi!

L. Cuna
Niederer AG
Questa descrizione è stata tradotta automaticamente da Tedesco.

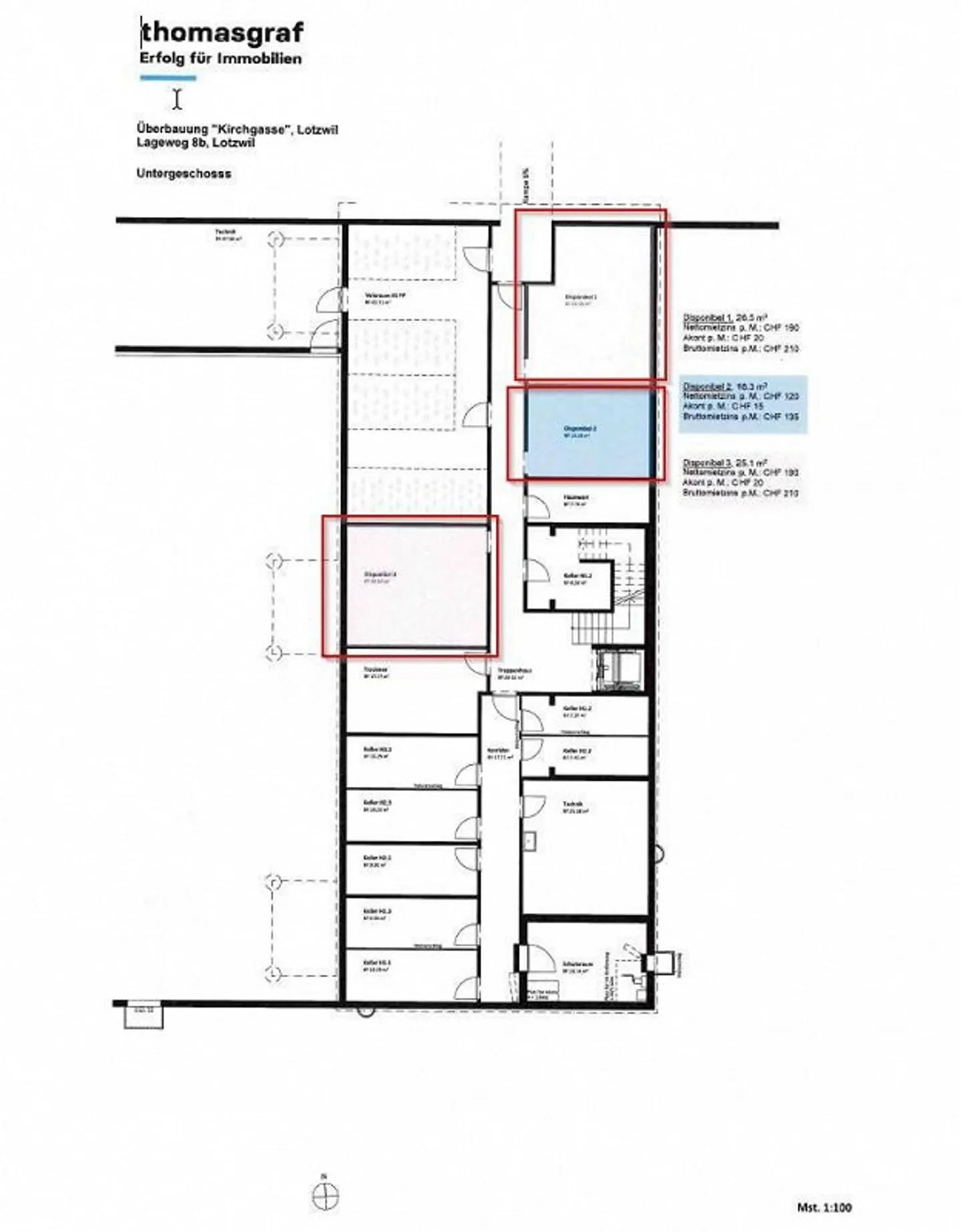
Affittiamo tre stanze disponibili in Lagerweg 8b a 4932 Lotzwil. Queste si trovano nel seminterrato del blocco residenziale in diverse dimensioni.

Disponibile 1: 26,5 m2 per CHF 210.00 spese incluse

Disponibile 2: 16,3 m2 per CHF 135.00 spese incluse

Disponibile 3: 25,1 m2 per CHF 210.00 spese incluse

Importante: NON sarà affittato come sistemazione per dormire/appartamento!

Sei interessato? Contattaci oggi stesso per fissare un appuntamento per la visita.

Dettagli immobile

Disponibile dal
Su accordo

Agenzia

Niederer AG
Indirizzo:Unterdorfstrasse 5, 3072, Ostermundigen
Ref: mig-1837-5335459
Online da
22/05/2025
5 mesi fa

Località

Lagerweg 8b, 4932 Lotzwil

Fonti