Spazio ufficio in affitto - Impasse Colombelle 8a, 1218 Le Grand-Saconnex
Perché amerai questa proprietà
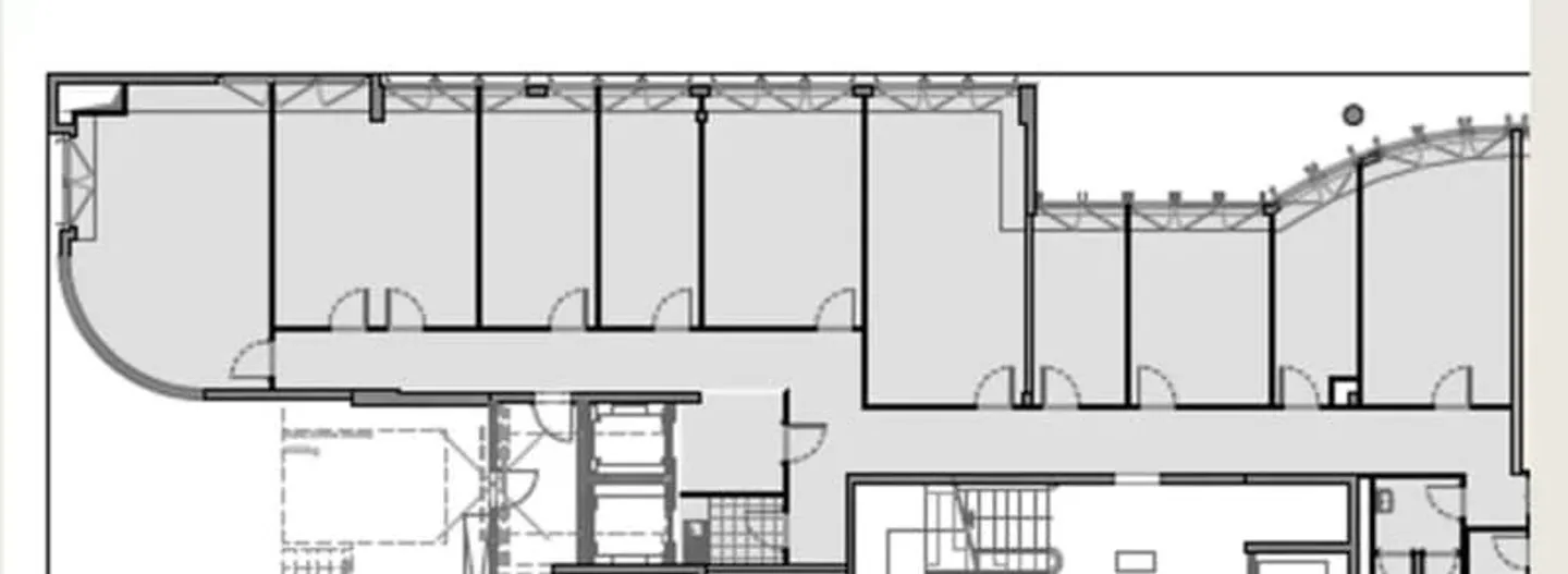
Layout uffici modulari
Accesso diretto con ascensore
Parcheggio disponibile in loco
Organizza una visita
Prenota una visita con Grégoire oggi!
Ufficio
Uffici arredati vicino all'aeroporto
L'edificio, idealmente situato a pochi minuti di auto da Place des Nations e con accesso immediato all'autostrada A1 e in un ambiente tranquillo, offre diverse superfici modulari in affitto.
Superfici disponibili:
- 1° piano: 481 m² in totale, suddivisibili in più lotti: 240 m², 164 m², 78 m² o 64 m².
- Ultimo piano: 270 m², divisibili in due unità di 114 m² e 152 m².
Disposizione e caratteristiche degli spazi:
Accesso diretto tramite ascensore
Combinazione d...
Dettagli immobile
- Disponibile dal
- Su accordo
- Superficie abitabile
- 480 m²

