Negozio in affitto - Freie Strasse 89, 4051 Basel
Perché amerai questa proprietà
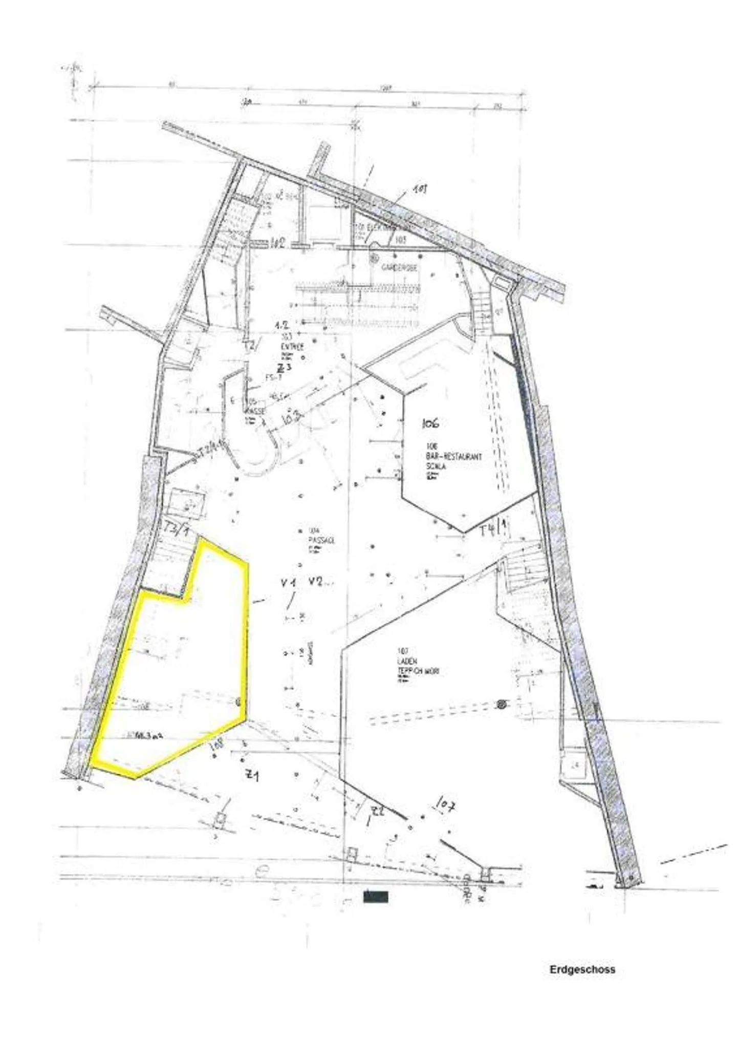
Vetrina di 41 m² su strada principale
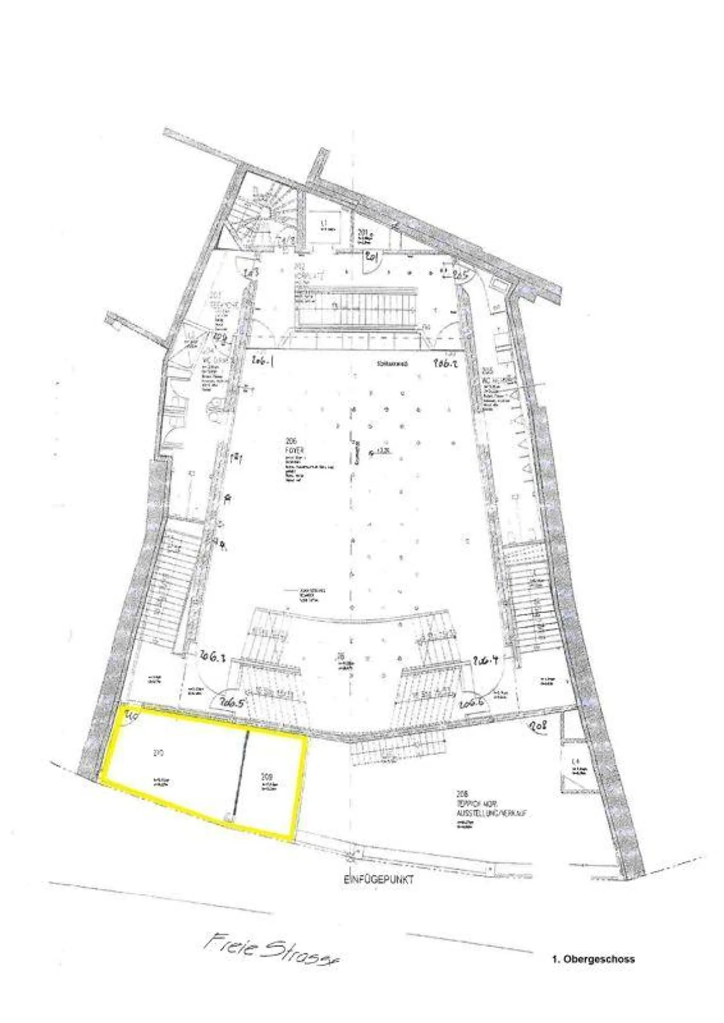
Ulteriore ufficio di 30 m²
Magazzino di 5 m² disponibile
Organizza una visita
Prenota una visita con Sabine oggi!
Spazio Commerciale in Posizione Centrale
Il tuo nuovo negozio nella Freien Strasse
In una posizione ideale nel terzo superiore della strada commerciale più famosa di Basilea, è disponibile uno spazio commerciale!
Dal 01.08.2026 (o su accordo), qui si offre un'area ideale per la tua attività commerciale. Al piano terra troverai la superficie commerciale effettiva di circa 41 m2 con finestre sulla zona pedonale e l'ingresso del negozio. Sopra, al 1° piano, un'area aggiuntiva (ufficio/atelier) di circa 30 m2 è accessibile tramite una scala,...
Ripartizione dei costi
- Affitto netto
- CHF 5’788
- Costi aggiuntivi
- CHF 1’705
- Totale delle locazioni
- CHF 5’788
Dettagli immobile
- Disponibile dal
- Su accordo
- Superficie abitabile
- 80 m²
- Superficie utilizzabile
- 80 m²



