Spazio ufficio in affitto - Rue De Genève 88, 1004 Lausanne
Perché amerai questa proprietà
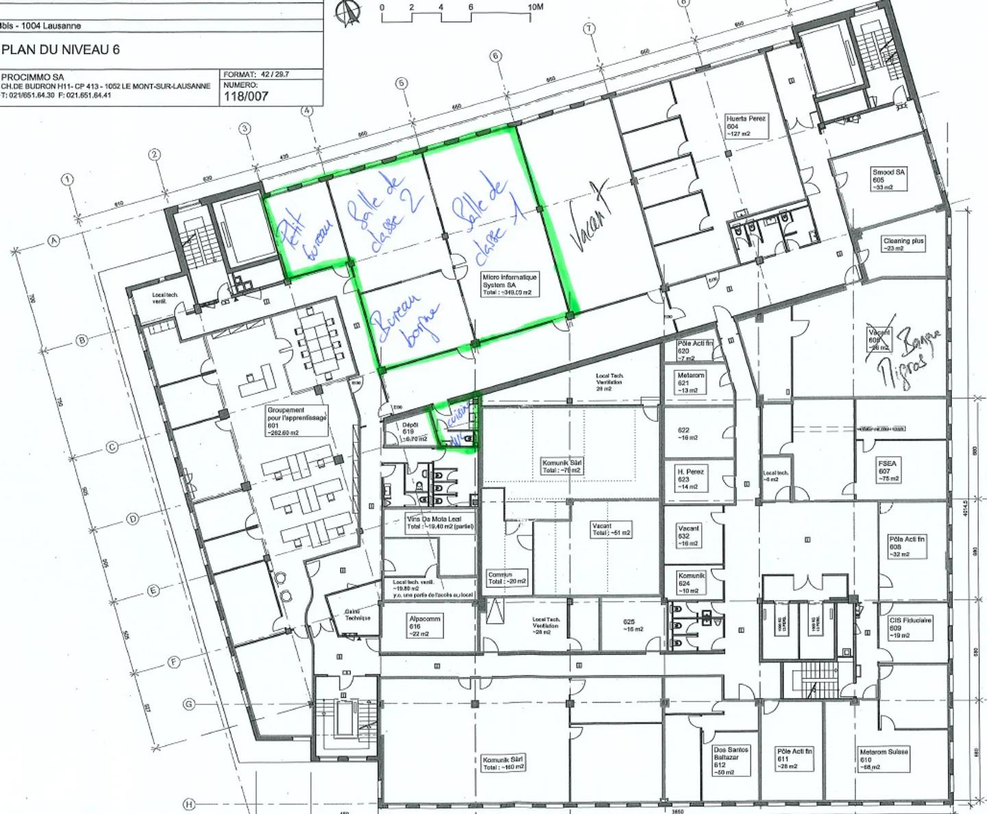
Ufficio luminoso di 200m2
Cucina privata inclusa
Vicino ai trasporti pubblici
Organizza una visita
Prenota una visita con oggi!
Questo spazio luminoso e spazioso di 200m2 si trova tra il centro città di Losanna e la stazione di Prilly-Malley, di fronte alla fermata del futuro tram "Prélaz-les-Roses".
Allestimento
- Destinazione: ufficio
- Superficie: 200m2 (diversi uffici e depositi in affitto nell'edificio)
- Piano: 6°
- Cucina privata
- Caffetteria comune
- Montacarichi: 2.000 kg
- Posti auto interni disponibili per affitto aggiuntivo.
Situazione geografica
- Negozi e ristoranti nelle immediate vicinanze, tra cui Coop e Coop P...
Ripartizione dei costi
- Affitto netto
- CHF 4'353
- Costi aggiuntivi
- CHF 610
- Totale delle locazioni
- CHF 4'353
Dettagli immobile
- Disponibile dal
- Su accordo
- Bagni
- 1
- Superficie abitabile
- 200 m²
- Superficie utilizzabile
- 200 m²



