Spazio ufficio in affitto - 8200 Schaffhausen
Perché amerai questa proprietà
Posizione centrale a Sciaffusa
Infrastruttura moderna inclusa
Ampia sala conferenze
Organizza una visita
Prenota una visita oggi!
Spazio per uffici altamente sviluppato in Fronwagplatz
Die bestehende Liegenschaft <> liegt im Herzen der Altstadt von Schaffhausen, in unmittelbarer Nähe zum Bahnhof.
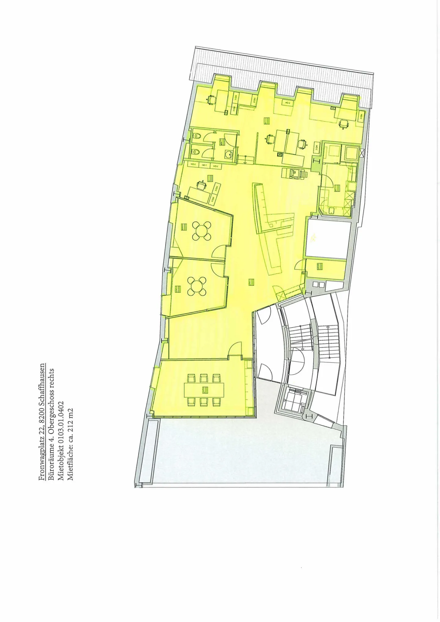
Die Räumlichkeiten liegen im 4. Obergeschoss, mit Lift erschlossen. Es stehend zwei grosszügige Einzelbüros, ein geräumiger Konferenzraum, ein repräsentativer Empfang, Backoffice und diverse Mehrplatzbüroflächen zur Verfügung. Eine Kleinküche, Restrooms und im Technikraum ein bereits bestehendes Rack für Ihre EDV-Anlagen. Die Verkabelung basiert auf zeitgemässem Standard.
Diese Ge...
Dettagli immobile
- Disponibile dal
- Su accordo
- Superficie abitabile
- 212 m²



