Spazio ufficio in affitto - Sonneggstrasse 82, 8006 Zürich
Perché amerai questa proprietà
Posizione centrale vicino a Zurich HB
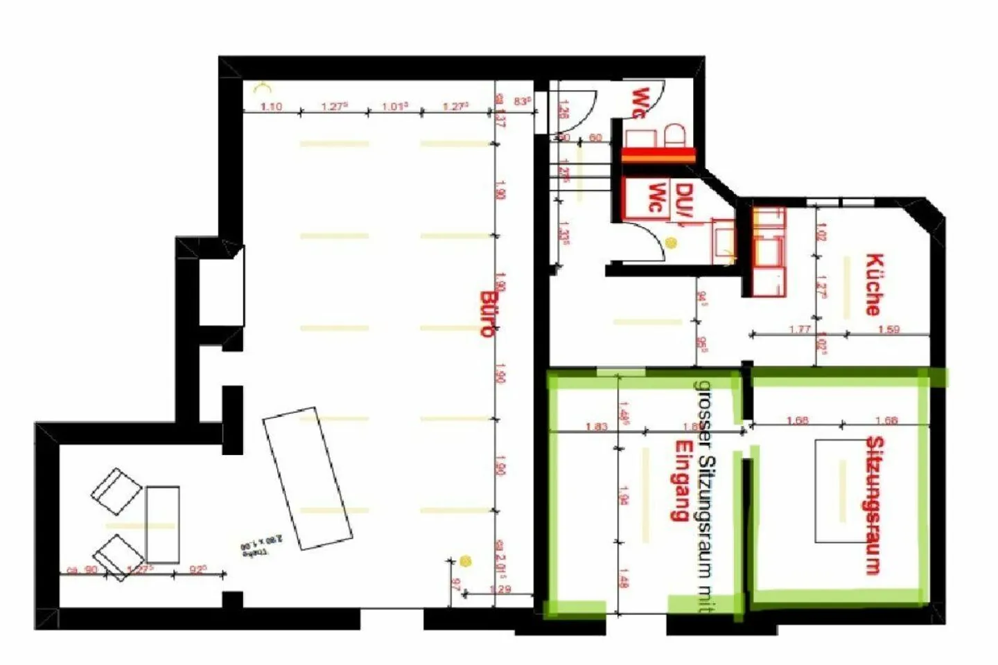
Ampie sale riunioni e private
Accesso a Internet ad alta velocità
Organizza una visita
Prenota una visita con Andreoli oggi!
Offerta di condivisione e affitto di spazi commerciali nel cuore di zurigo
Un ufficio moderno e luminoso
Nel cuore di Zurigo, in una delle zone più desiderabili e meglio collegate della città, ti offriamo un ufficio moderno e luminoso in affitto, situato in Sonneggstrasse 82.
Posizione strategica
L'edificio si trova a pochi minuti a piedi dalla stazione centrale (Zürich HB) e gode di una posizione privilegiata con un eccellente accesso ai mezzi pubblici, ristoranti, banche e servizi. La zona è particolarmente popolare tra uffici professionali, aziende tecnologiche e azien...
Ripartizione dei costi
- Affitto netto
- CHF 1’950
- Costi aggiuntivi
- CHF 200
- Totale delle locazioni
- CHF 1’950
Dettagli immobile
- Disponibile dal
- Su accordo



