Spazio di archiviazione in affitto - Weissensteinstrasse 81, 4500 Solothurn
Perché amerai questa proprietà
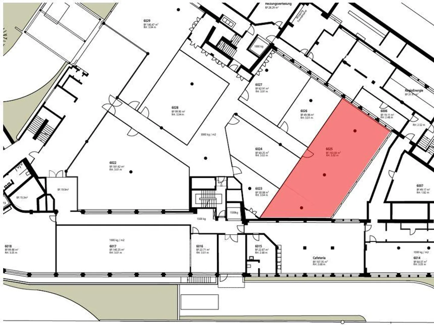
Spazio funzionale di 165 m²
Accanto all'area di consegna
Ideale per aziende logistiche
Organizza una visita
Prenota una visita con Caserta oggi!
Spazio di stoccaggio attraente in affitto a Solothurn
Spazio di stoccaggio pratico di 165 m² a Solothurn – direttamente nell'area di consegna
Questo spazio di stoccaggio funzionale di circa 165 m² è disponibile per l'affitto in una posizione facilmente accessibile a Solothurn.
Un punto forte particolare è la prossimità immediata all'area di consegna: Lo spazio si trova proprio accanto, consentendo di caricare e scaricare le merci in modo efficiente, rapido e senza lunghe distanze – un chiaro vantaggio per le aziende ad alta intensità logistica.
Lo spa...
Dettagli immobile
- Disponibile dal
- Su accordo



