Commerciale in affitto - Rue De La Porte-D'en-Bas 8, 1635 La Tour-de-Trême
Perché amerai questa proprietà
Spazi commerciali luminosi
Ottima visibilità
Opzioni di finanziamento flessibili
Organizza una visita
Prenota una visita oggi!
Industria
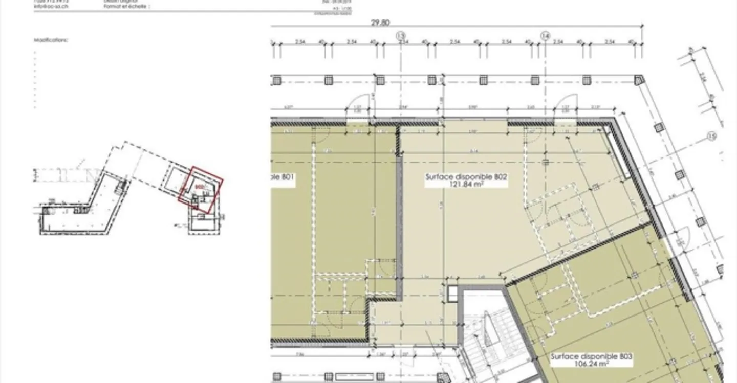
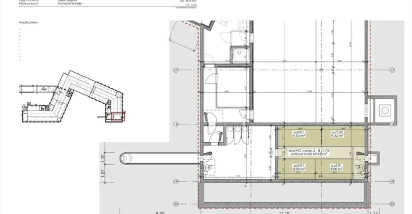
SUPERFICIE COMMERCIALE DI 122 M² IN IMMEDIATA PROSSIMITÀ A COOP POSSIBILITÀ DI FINANZIAMENTO/PARTECIPAZIONE PARZIALE/TOTALE DEGLI ARREDI FINALI DA PARTE DEL PROPRIETARIO. SUPERFICI COMMERCIALI LUMINOSE CON VETRINE IN IMMEDIATA PROSSIMITÀ DI UNA FILIALE COOP. DUE SUPERFICI ANCORA IN AFFITTO RISPETTIVAMENTE DI CIRCA 122 m² E 106 m² SITUATE AL PIANO TERRA. DESCRIZIONE • Edificio a 7 minuti dagli ingressi e uscite dell'autostrada (5,7 km tramite strada di circonvallazione). • Molti edifici in affitt...
Ripartizione dei costi
- Affitto netto
- CHF 2’435
- Costi aggiuntivi
- CHF 100
- Totale delle locazioni
- CHF 2’435
Dettagli immobile
- Disponibile dal
- Su accordo
- Anno di costruzione
- 2018



