Spazio ufficio in affitto - Impasse Colombelle 8, 1218 Le Grand-Saconnex
Perché amerai questa proprietà
Ampio open-space luminoso
Accesso con ascensore
Opzioni di affitto flessibili
Organizza una visita
Prenota una visita oggi!
Ufficio
In affitto – Uffici luminosi di 480m2 vicino all'aeroporto e a Place des Nations
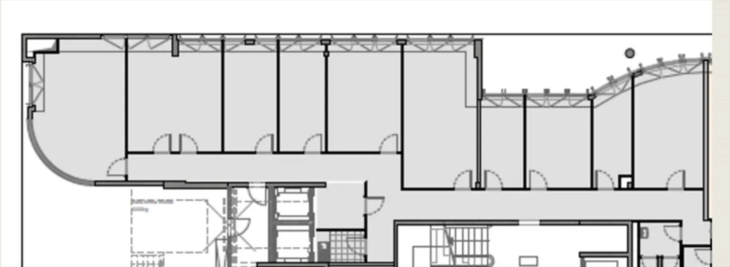
Situato in un edificio tranquillo, a pochi minuti di auto da Place des Nations e con accesso diretto all'autostrada A1, questo spazio professionale offre diverse superfici in affitto, da 240 m² a 480 m².
Disponibilità:
Superficie di 270 m² all'ultimo piano
Accesso tramite ascensore
Uffici singoli e grande open space
Angolo cucina
Servizi igienici
Superficie di 240 m² o 480m2 al 1° piano
Composta da due superfici adi...
Dettagli immobile
- Disponibile dal
- Su accordo
- Superficie abitabile
- 480 m²



