Spazio ufficio in affitto - Fadenbrücke 8, 6374 Buochs
Perché amerai questa proprietà
Layout flessibile
Spazi luminosi
Sistema di raffreddamento moderno
Organizza una visita
Prenota una visita con Herr oggi!
Spazi per uffici e commerciali attraenti in affitto a Buochs
Spazi per uffici e commerciali attraenti in affitto a Buochs
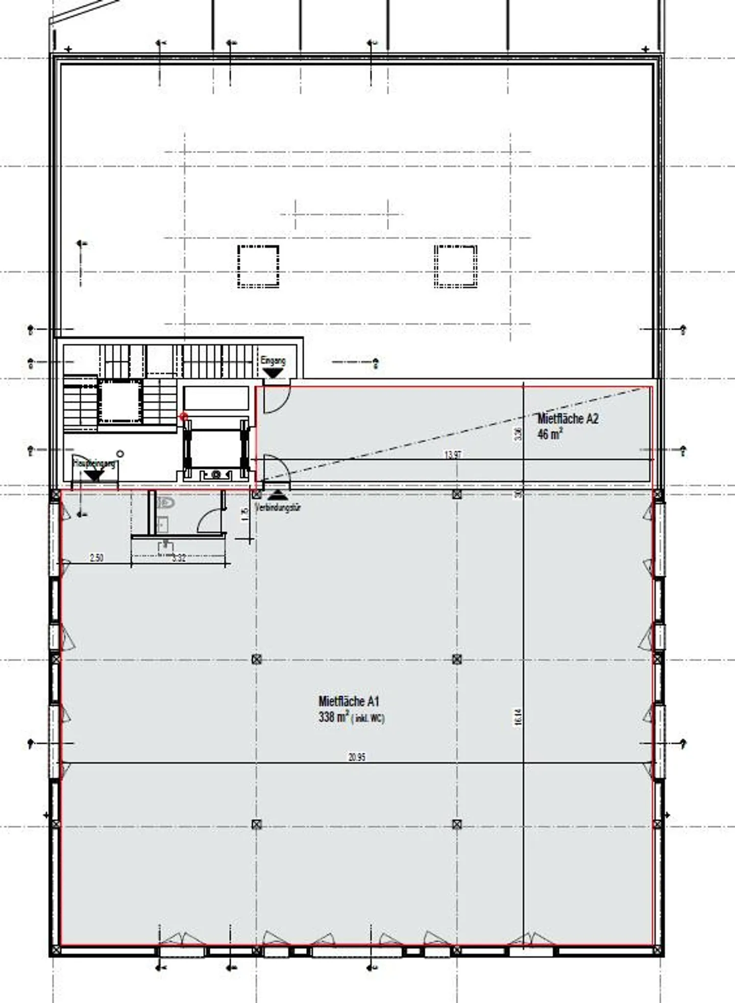
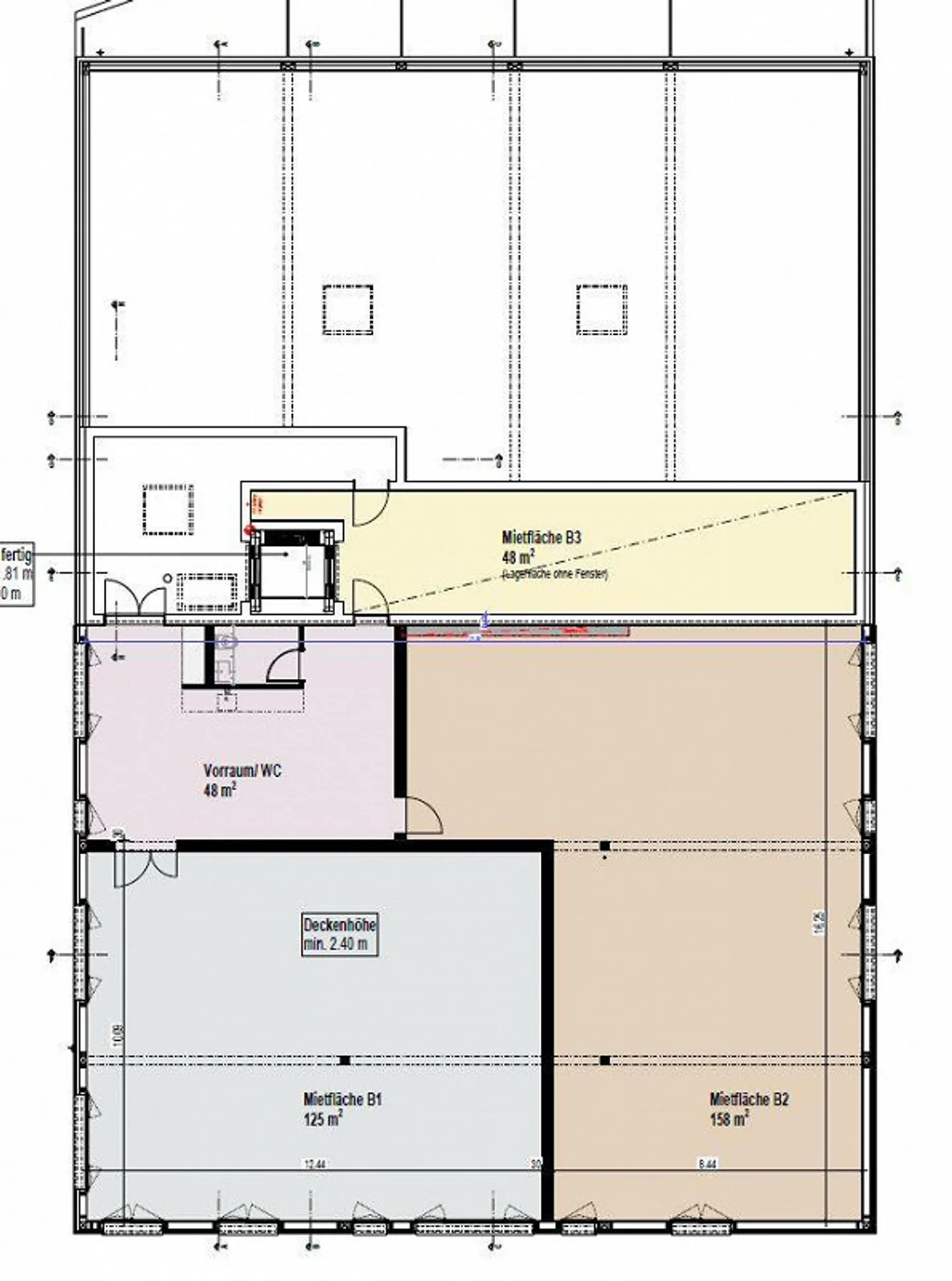
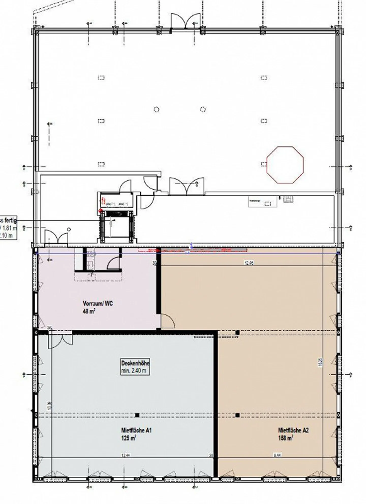
Spazi commerciali versatili a Buochs – disponibili immediatamente
Stiamo affittando spazi attraenti in costruzione grezza al 2° e 3° piano di un nuovo edificio commerciale a Buochs, disponibili immediatamente.
Gli spazi offrono molta libertà di design e possono essere adattati individualmente alle vostre esigenze – ideali per uffici, studi o altre attività commerciali.
Spazi disponibili:
2° piano: 338 m² (incluso WC)
3° piano: 338 m² ...
Dettagli immobile
- Disponibile dal
- Su accordo
- Anno di costruzione
- 2025



