Spazio ufficio in affitto - Fadenbrücke 8, 6374 Buochs
Perché amerai questa proprietà
Opzioni di layout flessibili
Aree luminose e spaziose
Sistema di raffreddamento moderno
Organizza una visita
Prenota una visita con Herr oggi!
Spazi per uffici e commerciali attraenti in affitto a buochs
Spazi commerciali versatili a Buochs – disponibili dalla primavera 2026
Affittiamo spazi attraenti in costruzione grezza in un nuovo edificio commerciale a Buochs dalla primavera 2026.
Gli spazi offrono molta libertà di progettazione e possono essere adattati individualmente alle vostre esigenze – ideali per uffici, studi o altre attività commerciali.
Spazi disponibili:
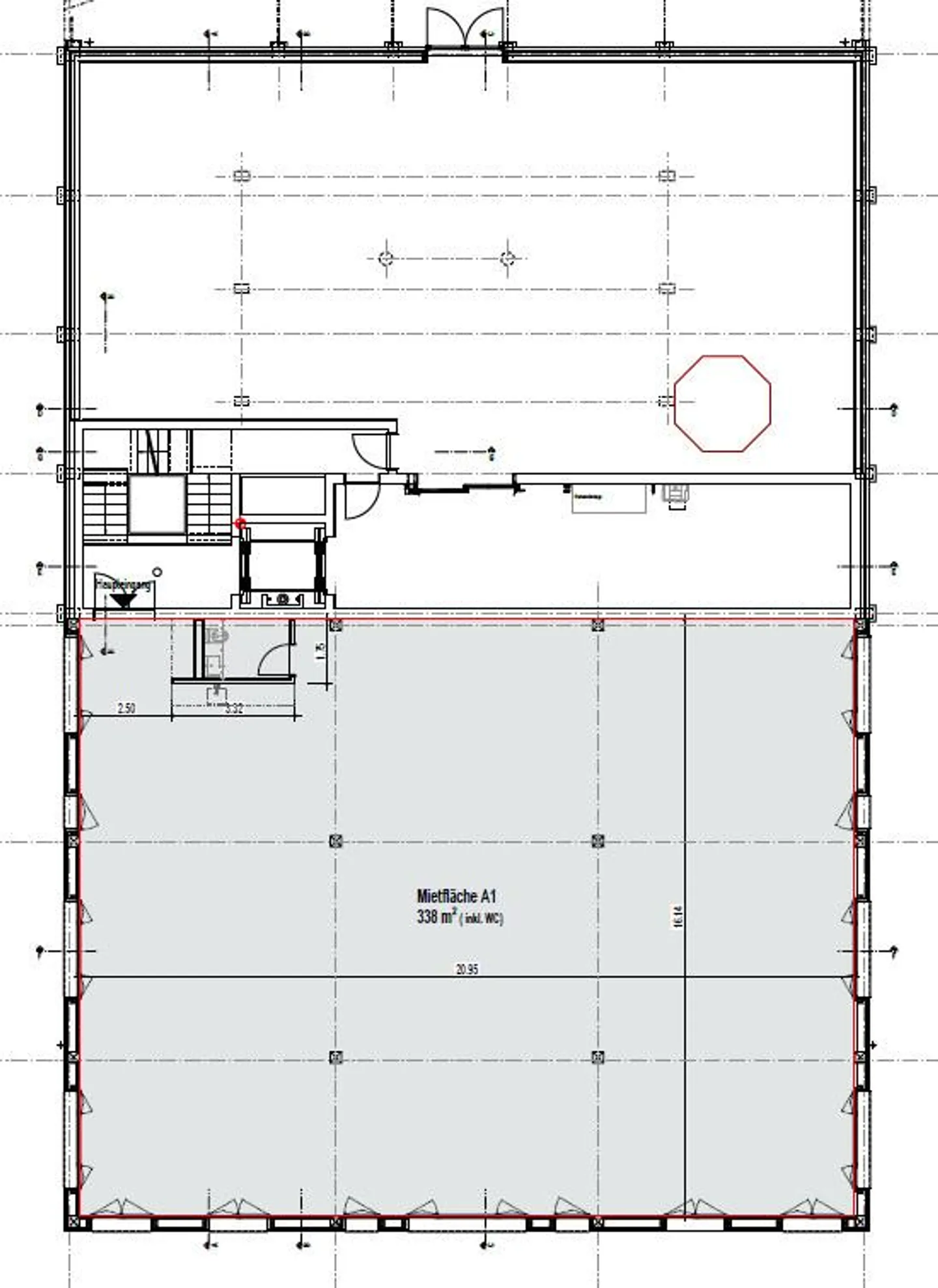
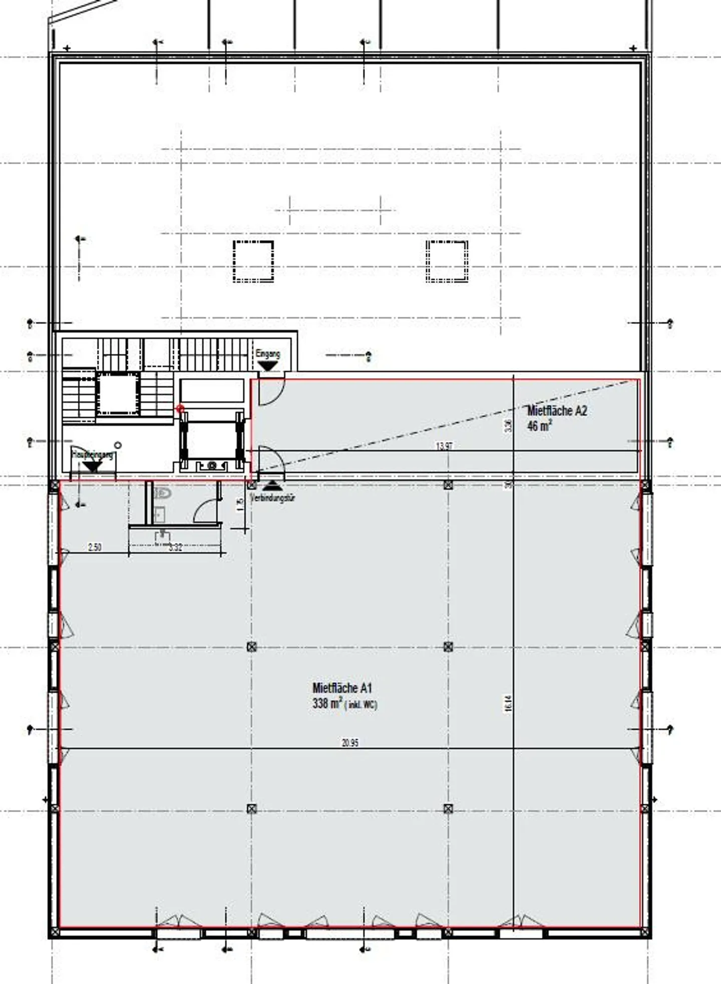
2° piano: 338 m² (incluso WC)
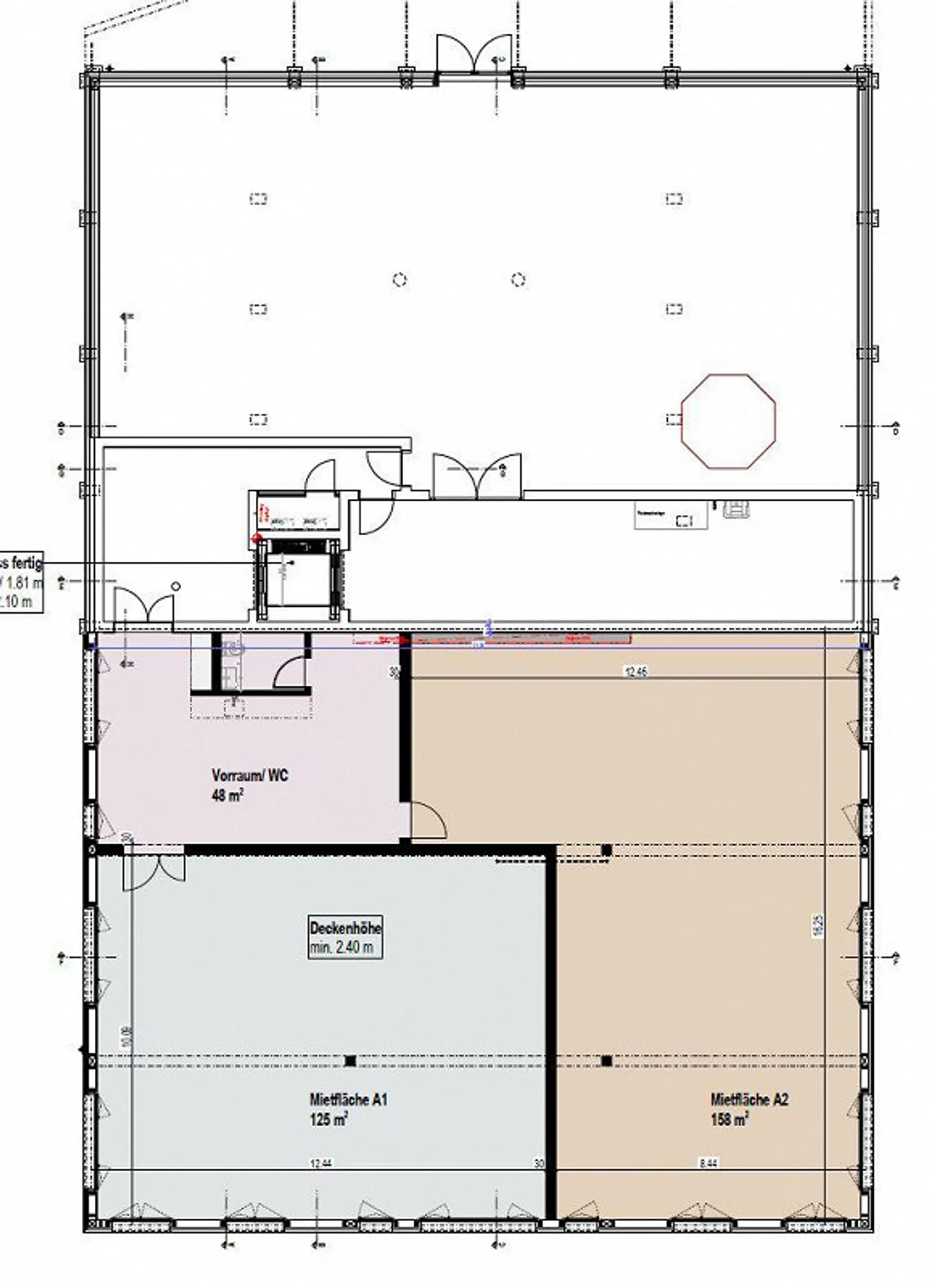
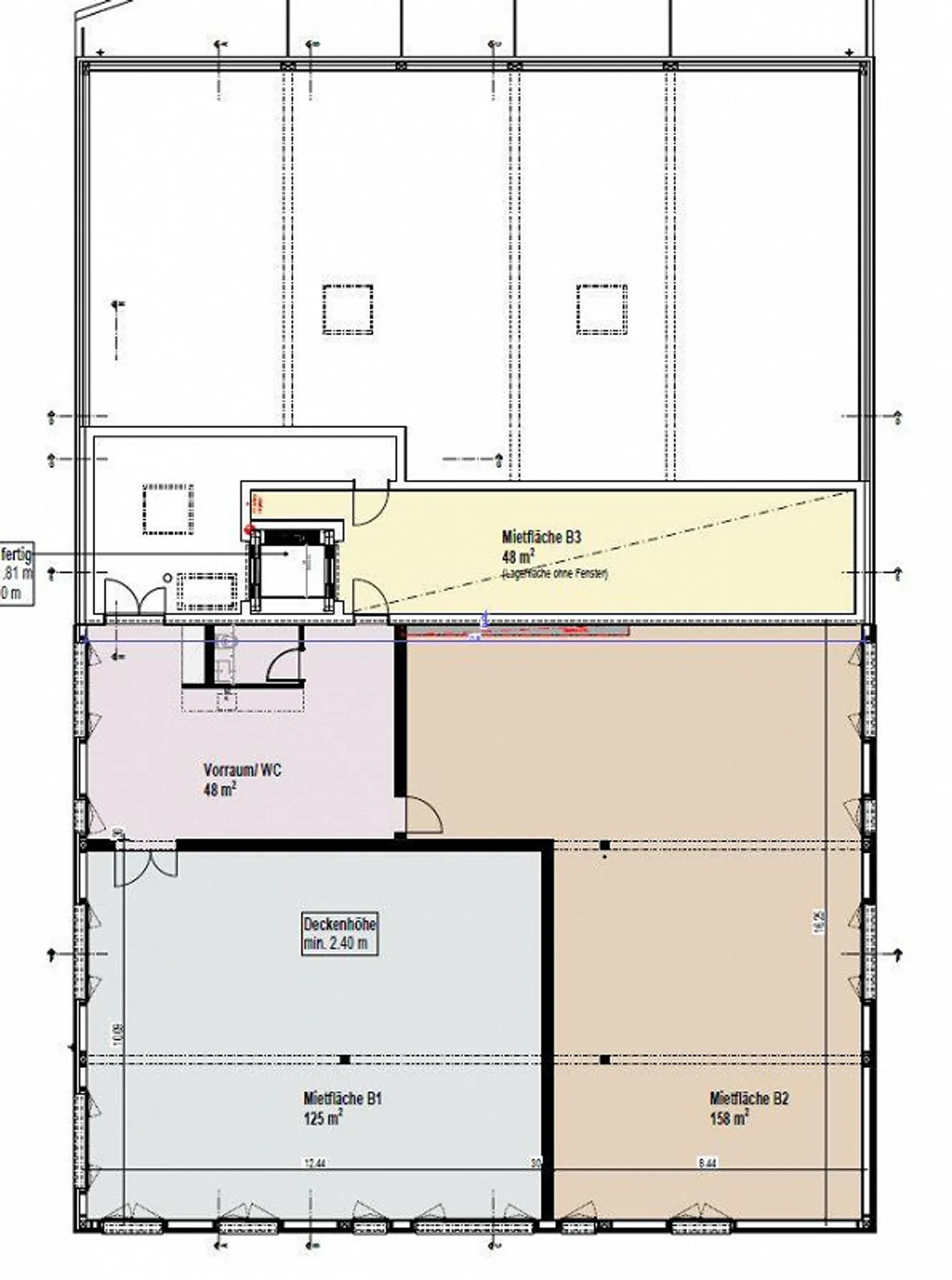
3° piano: 338 m² (incluso WC)
3° piano: 46 m² (senza finestre)
È anche possibile affittare un'a...
Dettagli immobile
- Disponibile dal
- Su accordo
- Anno di costruzione
- 2025



