Studio medico in affitto - Bahnhofplatz 8, 8400 Winterthur
Perché amerai questa proprietà
Spazio luminoso e versatile
Edificio storico ristrutturato
Posizione ad alto traffico
Organizza una visita
Prenota una visita con Simon oggi!
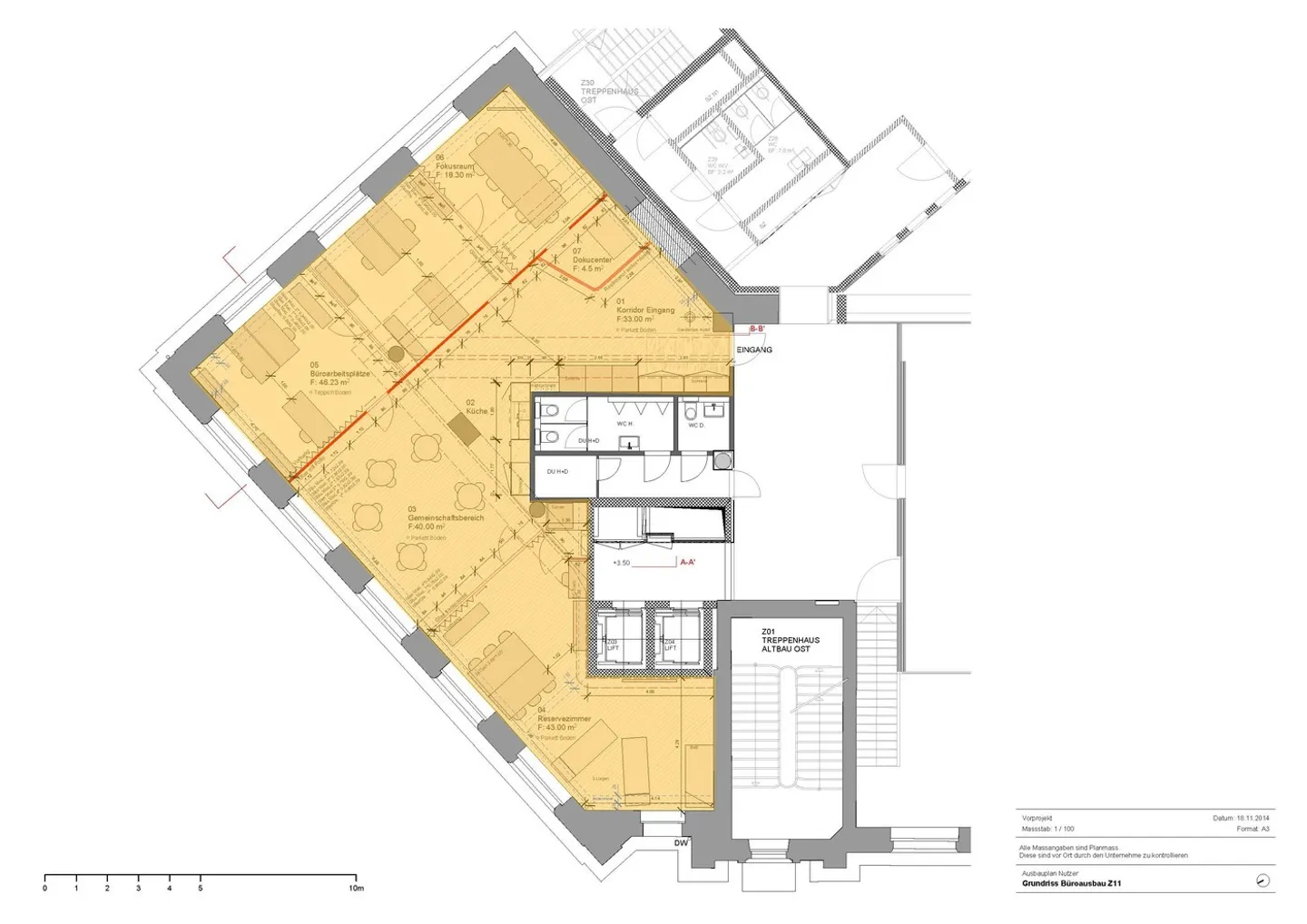
TOP Area in TOP Posizione
Affittiamo un'area attraente, luminosa e versatile nella posizione più centrale di Winterthur, nell'edificio per uffici rappresentativo 'Hauptpost' direttamente presso la stazione ferroviaria di Winterthur.
* Area di circa 215m²
* Piano mezzanino
* Ideale per uso come studio, ufficio o spazio commerciale
* Direttamente presso la stazione ferroviaria di Winterthur nell'edificio postale storico
* Frescamente ristrutturato e ampliato con un moderno edificio annesso di quattro piani
* Alta frequenza di v...
Ripartizione dei costi
- Affitto netto
- CHF 5’308
- Costi aggiuntivi
- CHF 25
- Totale delle locazioni
- CHF 5’308
Dettagli immobile
- Disponibile dal
- Su accordo
- Anno di ristrutturazione
- 2014
- Superficie abitabile
- 196 m²
- Superficie utilizzabile
- 196 m²



