Commerciale in affitto - Route Du Petit-Moncor 7a, 1752 Villars-sur-Glâne
Perché amerai questa proprietà
Accesso rapido all'A12
Banchina di carico con rampe
Capacità di stoccaggio ottimizzata
Organizza una visita
Prenota una visita oggi!
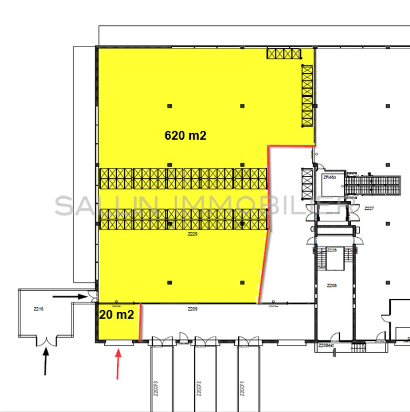
Magazzino/Hall di circa 763 m², area di carico con rampe di carico
Situato nel settore industriale strategico di Villars-sur-Glâne, beneficia di un rapido accesso al raccordo autostradale A12 e ai mezzi pubblici.
SITUAZIONE
A 2 passi
- fermata dell'autobus
- ristoranti
- centro commerciale
A 1-2 min. in auto
- raccordo A12
A 5-7 min. in auto
- stazione di Friburgo
- centro città
DISTRIBUZIONE
Magazzino logistico dotato di un'area di carico con rampa di carico esterna di circa 20.00 m².
Lo spazio è dotato di scaffalature metalliche con una capacità di circa 200 p...
Dettagli immobile
- Disponibile dal
- Su accordo



