Spazio ufficio in affitto - Rue Emile-Boéchat 79, 2800 Delémont
Perché amerai questa proprietà
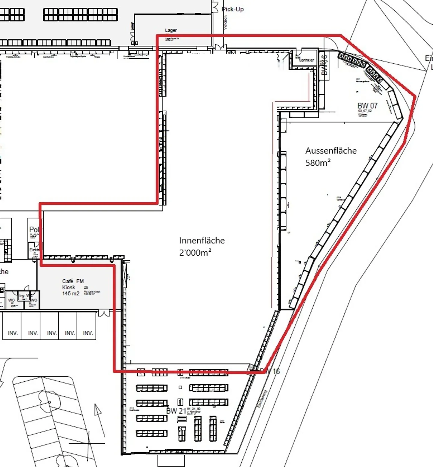
2000m² di spazio interno
580m² di spazio esterno
Posizione strategica vicino A16
Organizza una visita
Prenota una visita oggi!
Spazio commerciale spazioso di 2'500m2 - mparc delemont
Questo spazioso spazio commerciale si trova al piano terra del MParc Delemont con un mix di inquilini entusiasmante.
Con 2'000 m² di spazio interno, l'area offre condizioni ideali per il tuo concetto di negozio individuale e una buona visibilità al piano terra. Ulteriori 580m² sono disponibili nell'area esterna, di cui 250m² sono coperti e 330m² sono liberi.
Lo spazio è affittato nella sua base di sviluppo, offrendo così la massima flessibilità per l'implementazione del tuo concetto commerciale ...
Dettagli immobile
- Disponibile dal
- Su accordo



