Commerciale in affitto - Gotthardstrasse 74, 6460 Altdorf UR
Perché amerai questa proprietà
3 grandi vetrine
Accesso diretto al bus
Opzioni di utilizzo flessibili
Organizza una visita
Prenota una visita con Arnold oggi!
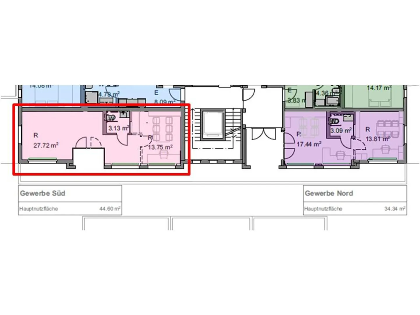
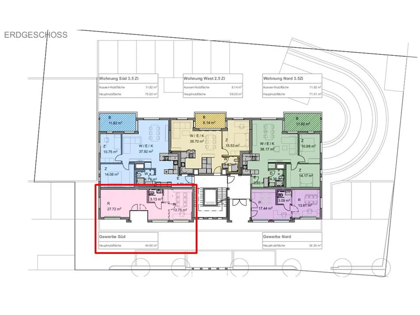
Negozio / spazio commerciale / spazio aziendale / ufficio / studio
In affitto
Negozio / Spazio commerciale / Ufficio (Spazio commerciale)
Affittiamo un negozio al piano terra in una posizione centrale in Gotthardstrasse 74, 6460 Altdorf (proprio di fronte a Urnertor), fermata dell'autobus proprio davanti all'edificio.
La stanza dispone di 3 grandi vetrine, ventilazione, un WC, persiane elettriche, tende da sole e un ingresso separato.
Questa stanza può essere utilizzata come negozio, spazio commerciale, ufficio o studio; molte possibilità sono disponibili!
Ecco i de...
Ripartizione dei costi
- Affitto netto
- CHF 1’350
- Costi aggiuntivi
- CHF 150
- Totale delle locazioni
- CHF 1’350
Dettagli immobile
- Disponibile dal
- Su accordo
- Anno di costruzione
- 1996
- Anno di ristrutturazione
- 2023



