Spazio ufficio in affitto - Promenade 72, 7270 Davos Platz
Perché amerai questa proprietà
Grandi vetrine
Posizione centrale
Parcheggio disponibile
Organizza una visita
Prenota una visita con Frey oggi!
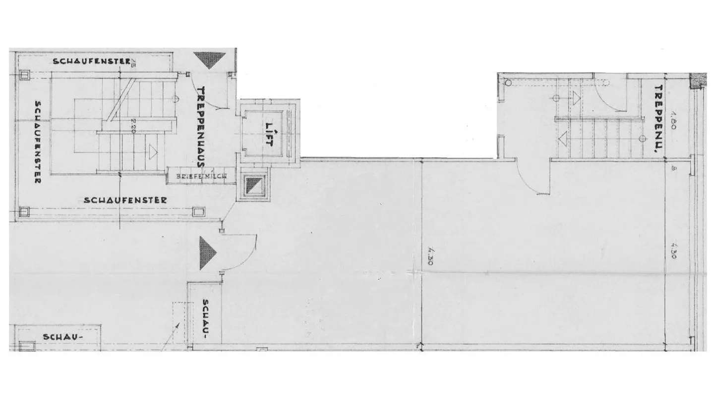
Spazio commerciale in affitto a davos platz
Spazio commerciale al piano terra, con grandi vetrine
7,2 m2 di spazio di stoccaggio nel seminterrato
Posizione centrale
Migliore frequenza di passaggio
Posti auto davanti alla casa
Ripartizione dei costi
- Affitto netto
- CHF 1’560
- Costi aggiuntivi
- CHF 110
- Totale delle locazioni
- CHF 1’560
Dettagli immobile
- Disponibile dal
- Su accordo
- Anno di ristrutturazione
- 2024



