Laboratorio in affitto - Route De Suisse 7, 1295 Mies
Perché amerai questa proprietà
Layout spazioso e flessibile
Ottimo accesso ai trasporti
Ambiente calmo e professionale
Organizza una visita
Prenota una visita con Baldino oggi!
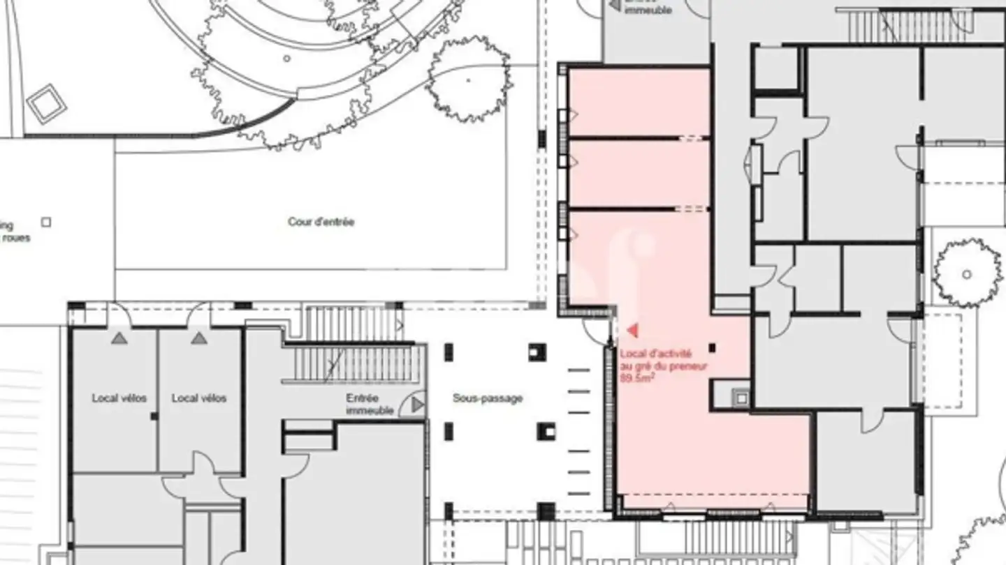
Spazio commerciale luminoso di 68 m² in affitto - ideale per ufficio...
Spazio commerciale luminoso di 68 m² in affitto - Ideale per uffici o attività professionali
Situato in un contesto tranquillo e funzionale, questo spazio di 68 m² è perfetto per le aziende in cerca di un'area flessibile e luminosa. Grazie alle sue grandi finestre, lo spazio beneficia di una bella luce naturale per tutto il giorno, creando un ambiente di lavoro piacevole e motivante.
Principali vantaggi:
• Spazi luminosi e modulari: Approfitta di una stanza spaziosa, ideale per arredare secondo le ...
Ripartizione dei costi
- Affitto netto
- CHF 1’815
- Costi aggiuntivi
- CHF 200
- Totale delle locazioni
- CHF 1’815
Dettagli immobile
- Disponibile dal
- Su accordo



