Commerciale in affitto - Karlihofstrasse 7, 7208 Malans GR
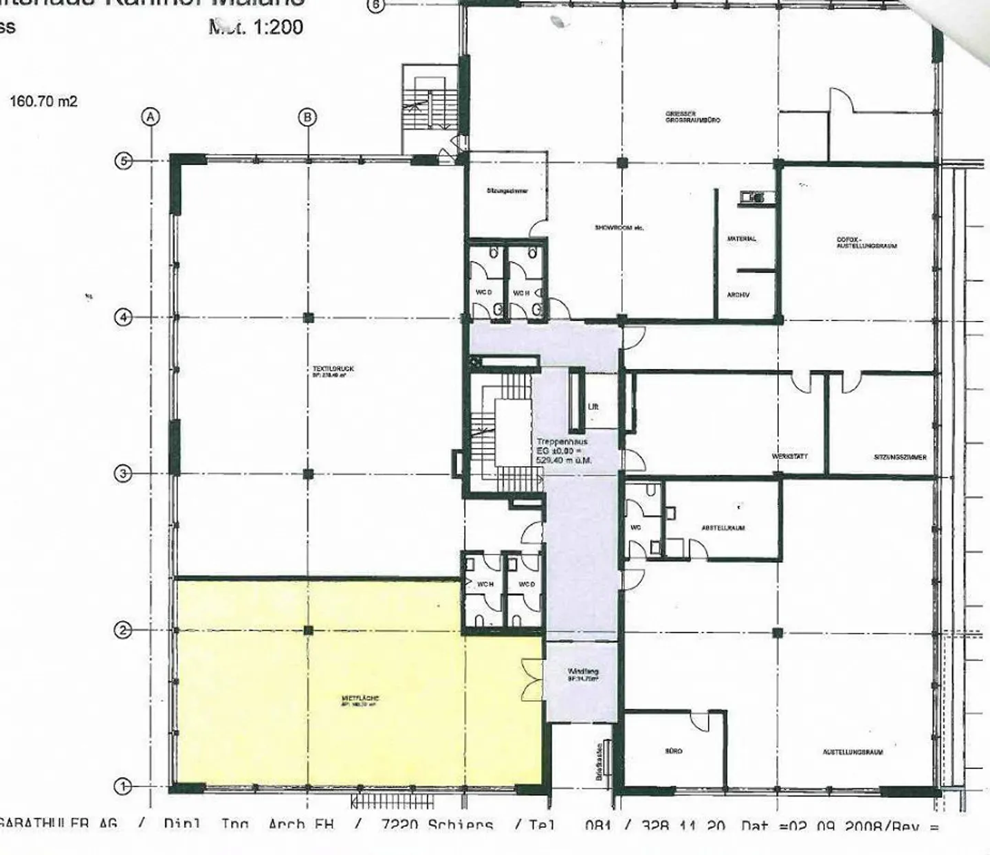
Piano terra
CHF 2’133
-
Perché amerai questa proprietà
Posizione attraente
Parcheggio esterno disponibile
Termini di affitto flessibili
Organizza una visita
Prenota una visita oggi!
Montana AG Liegenschaften
Questa descrizione è stata tradotta automaticamente da Tedesco.
160 m2 ufficio/spazio vendita
A partire dal 1° ottobre 2026 o su accordo, affittiamo locali moderni per uffici/commerciali in una posizione attraente dal punto di vista del traffico, nell'edificio commerciale Karlihof a Malans.
- I posti auto esterni possono essere affittati in aggiunta all'immobile in affitto (CHF 50.00 per posto auto/mese).
Il nostro interesse è stato suscitato? Allora non vediamo l'ora di sentirti.
Dettagli immobile
- Disponibile dal
- Su accordo
- Anno di costruzione
- 2005
Caratteristiche
Parcheggio
Ascensore
Internet
Agenzia
Montana AG Liegenschaften
Indirizzo:Chur, Grabenstrasse, 7000
Ref: 802
Online da
10/11/2025
5 ore fa
Località
Karlihofstrasse 7, 7208 Malans GR



