Spazio ufficio in affitto - 6943 Vezia
Perché amerai questa proprietà
Ideale per servizi medici
Ampia area di ricevimento
Due posti auto esterni
Organizza una visita
Prenota una visita oggi!
Locali in affitto in una posizione strategica
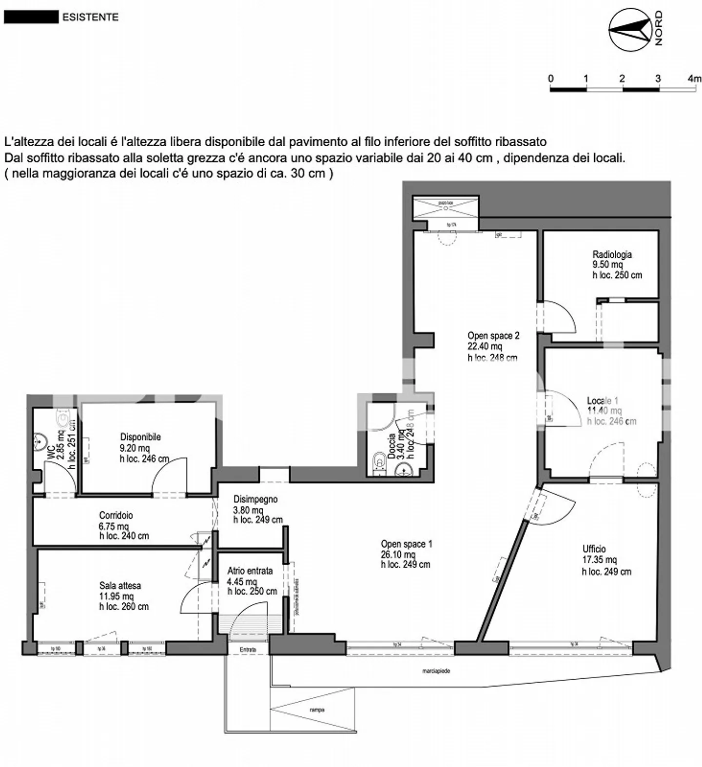
Questo bellissimo locale commerciale si trova a Vezia, in una delle zone più dinamiche e frequentate della città. Con una superficie di 139 m2, è ideale per attività mediche o dentistiche e per la cura dei clienti.
Internamente è suddiviso come segue:
- Ingresso
- Grande hall di ricevimento
- Corridoio con archivio e bagno
- 4 locali operativi di varie dimensioni
- Bagno con doccia
AFFITTO: 2'200.- CHF/MESE.
DEPOSITO CAUZIONALE SPESE AGGIUNTIVE: 200.- CHF/MESE.
DUE POSTI AUTO ESTERNI: 60.- C...
Dettagli immobile
- Disponibile dal
- Su accordo



