1 / 20

Fattoria in affitto - 6828 Balerna

6 stanze
CHF 2’500
-

Perché amerai questa proprietà

Accesso al giardino privato

Strada residenziale tranquilla

Ampio soggiorno open space

Organizza una visita

Prenota una visita oggi!

Questa descrizione è stata tradotta automaticamente da Tedesco.

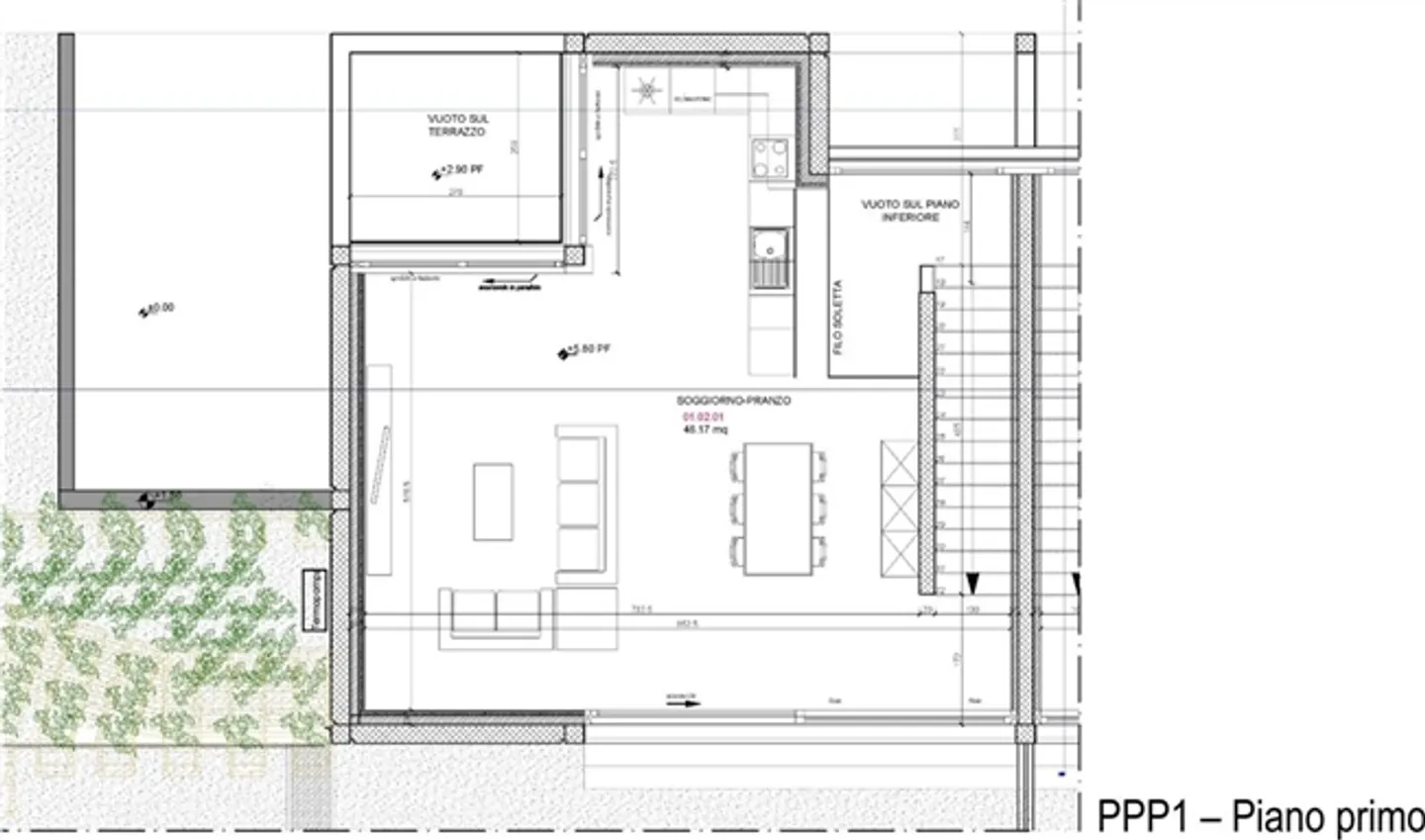
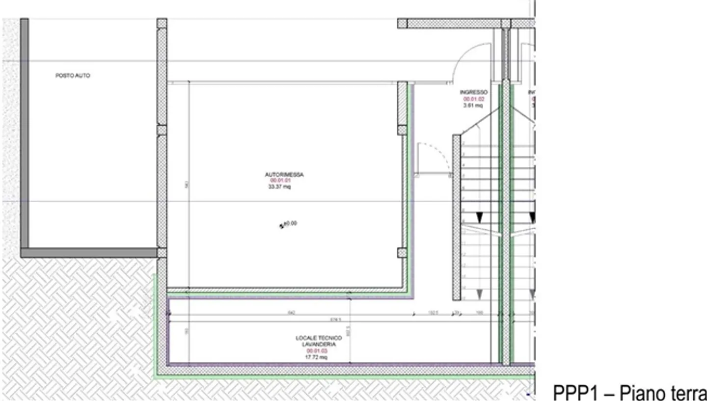
Casa unifamiliare luminosa con giardino privato

In una posizione tranquilla e verde, a pochi passi dalla stazione ferroviaria e dall'ingresso dell'autostrada, alla fine di una strada privata riservata esclusivamente ai residenti, questa recente casa bifamiliare con eccellente esposizione al sole è disponibile per l'affitto. La villa di 160 m² si estende su tre livelli collegati da una scala interna. È composta da: – Al piano terra ci sono un posto auto, un garage doppio, un ingresso e una lavanderia. – La zona notte dispone di due camere da l...

Dettagli immobile

Disponibile dal
Su accordo
Stanze
6
Anno di costruzione
2017

Agenzia

Nessun dettaglio dell'agenzia disponibile
Online da
15/01/2026
24 giorni fa

Località

6828 Balerna

Fonti