Commerciale in affitto - 6514 Sementina
Perché amerai questa proprietà
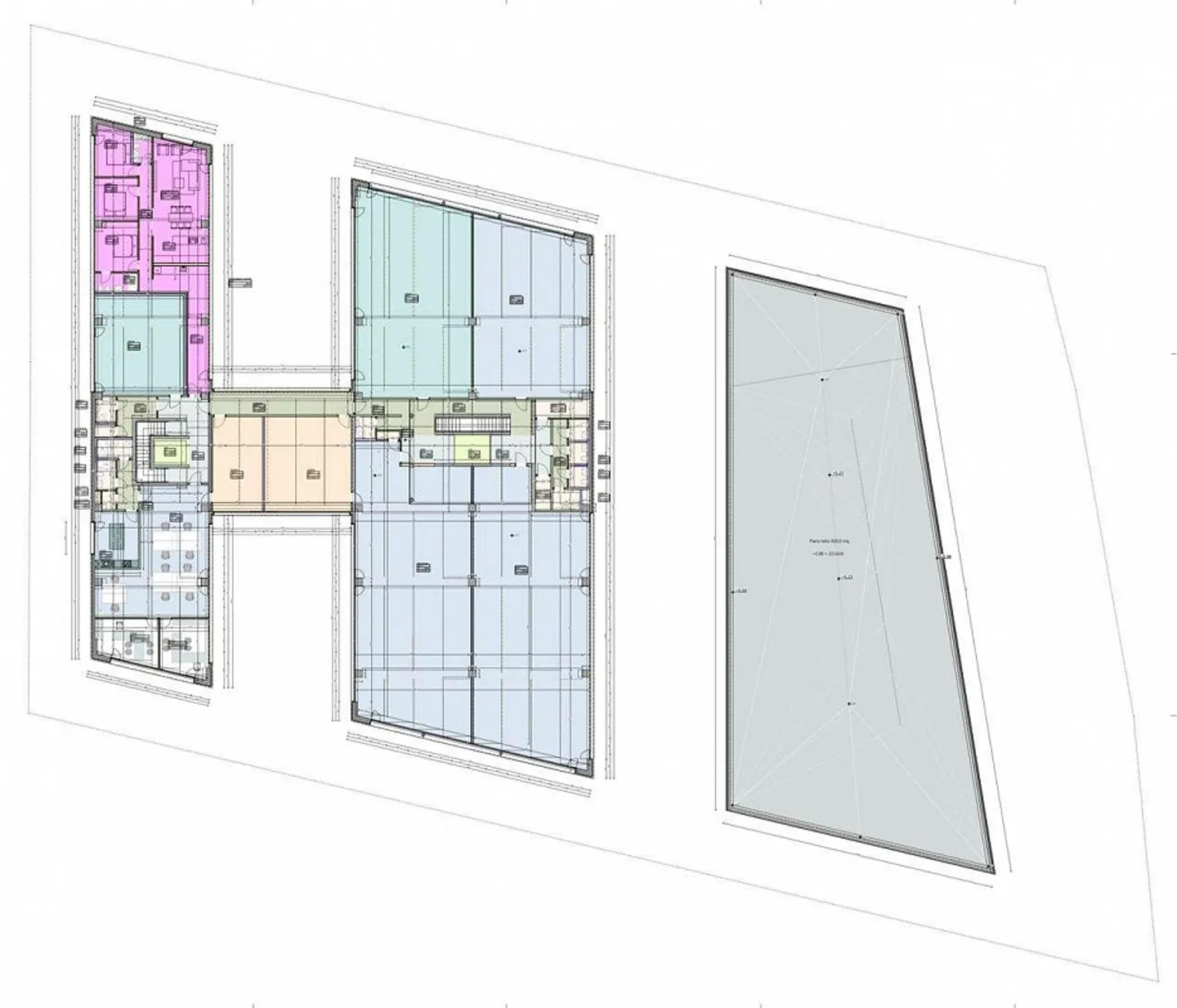
Layout personalizzabili
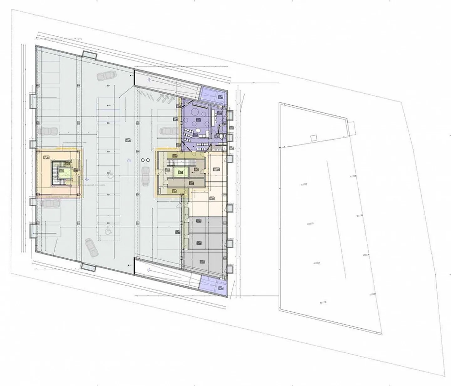
Ampio parcheggio disponibile
Sale conferenze moderne
Organizza una visita
Prenota una visita oggi!
Superfici artigianali e uffici nuovi
Bellinzona - Sementina | Nella rinomata zona industriale a Sementina (fra l'A2 e il fiume Ticino), comodo in prossimità dell'accesso autostradale A2 Bellinzona-Sud sta sorgendo un nuovo e attrattivo stabile con superfici modulabili e personalizzabili secondo le singole esigenze. Da depositi, laboratori artigianali a uffici, il "Centro Gerre" propone la soluzione ideale per ogni necessità! La consegna degli spazi da affittare è prevista per agosto/settembre 2024, dunque possono essere ancora "per...
Dettagli immobile
- Disponibile dal
- Su accordo



