1 / 9

Spazio ufficio in affitto - 6045 Meggen

2° piano
Prezzo su richiesta
-

Perché amerai questa proprietà

Posizione privilegiata per affari

Opzioni di affitto flessibili

Facile accesso ai trasporti

Organizza una visita

Prenota una visita oggi!

Teamag Immobilien AG
Questa descrizione è stata tradotta automaticamente da Tedesco.

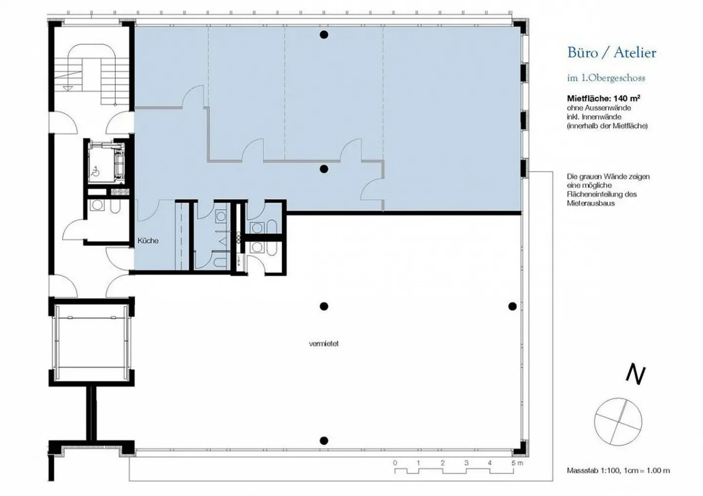
In affitto ufficio/commerciale/studio 1° piano nella comunità attraente m...

Part. rispetto pronto spazio ufficio in proprietà commerciale completamente sviluppata (140 m2). Buona posizione del traffico in una comunità fiscalmente efficiente adatta per operazioni commerciali / Trust / architettura / azienda di ingegneria, ecc. L'affitto di lotti è possibile (ad es. spazio ufficio) Vicino alla strada principale Lucerna-Küssnacht in una città suburbana attraente di Lucerna. Fermata dell'autobus di fronte alla casa, stazione ferroviaria a circa 10 minuti a piedi. Il centro ...

Dettagli immobile

Disponibile dal
Su accordo

Agenzia

Teamag Immobilien AG
Indirizzo:Ebikon, Bahnhofstrasse, 6030
Ref: 401242
Online da
22/05/2025
5 mesi fa

Località

6045 Meggen

Fonti