Spazio ufficio in affitto - Hegnaustrasse 60, 8602 Wangen b. Dübendorf
Perché amerai questa proprietà
Spazioso con grandi finestre
Accesso diretto al montacarichi
Cucina e bagni attrezzati
Organizza una visita
Prenota una visita oggi!
Posizione attraente con ottime infrastrutture
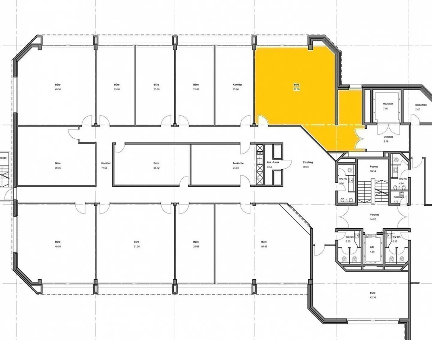
In un rappresentativo edificio commerciale a 8602 Wangen ZH (vicino a Brüttiseller-Kreuz) affittiamo:Un luminoso e soleggiato spazio ufficio di circa 84 m2 diviso in due aree con accesso diretto al montacarichi. Grandi finestre offrono molta luce e una buona atmosfera per lavorare. L'ufficio dispone di pratici armadi a muro ed è dotato di una nuova moquette.Sono disponibili una cucina al piano, servizi igienici e un ascensore.Posti auto nel garage ONU possono essere affittati in aggiunta.Se inte...
Ripartizione dei costi
- Affitto netto
- CHF 1’195
- Costi aggiuntivi
- CHF 250
- Totale delle locazioni
- CHF 1’195
Dettagli immobile
- Disponibile dal
- Su accordo
- Anno di costruzione
- 1988
- Superficie abitabile
- 84 m²



