Spazio ufficio in affitto - Bern-Strasse 60, 8952 Schlieren
Perché amerai questa proprietà
Spazio di lavoro luminoso
Sala riunioni separata
Finiture di alta qualità
Organizza una visita
Prenota una visita oggi!
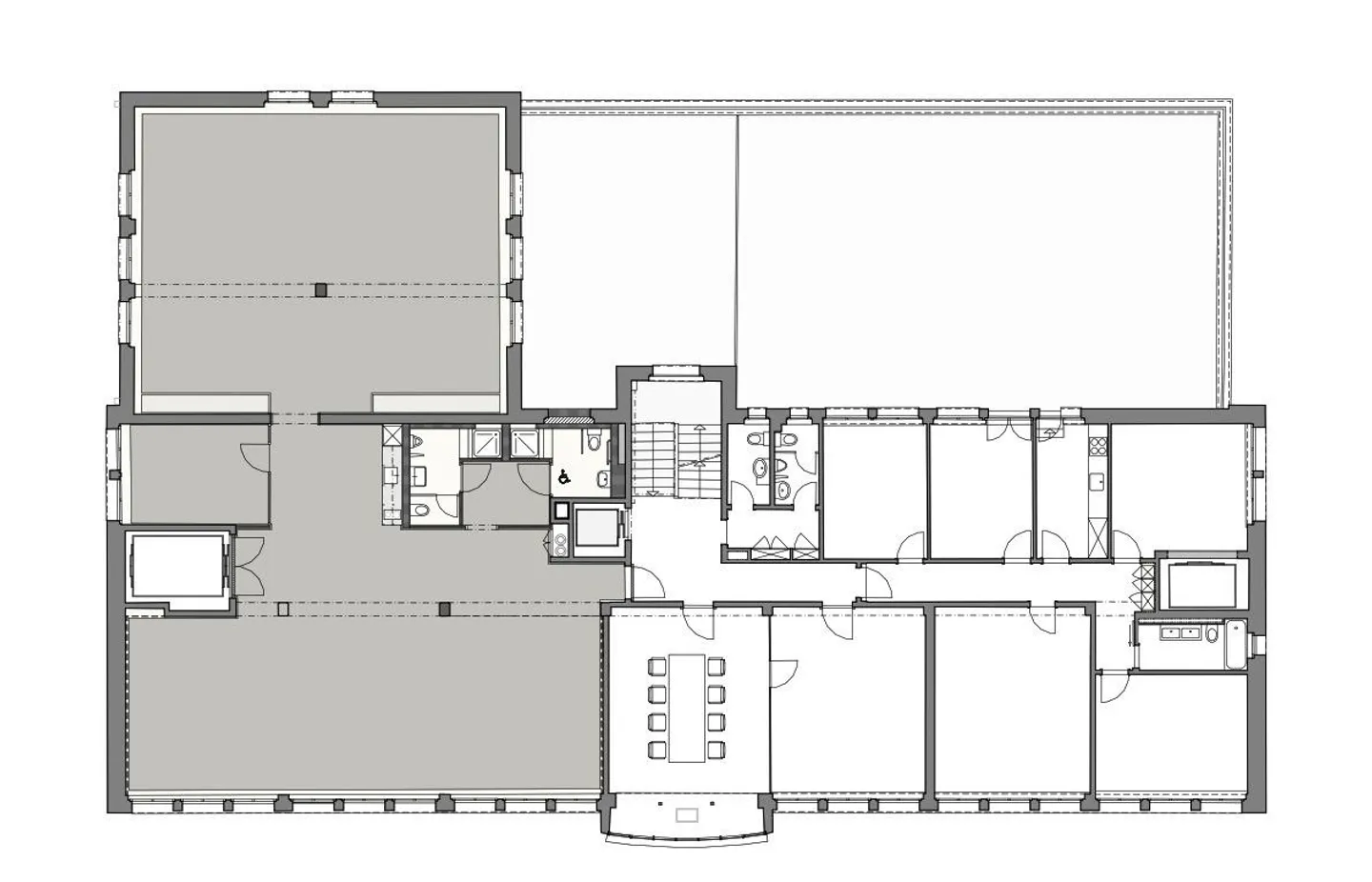
Spazio ufficio moderno – 260 m² con finiture di alta qualità
Al 2° piano a sinistra, troverete uno spazio ufficio rappresentativo di circa 260 m², che impressiona per l'attrezzatura moderna, le opzioni di utilizzo flessibili e un ambiente attraente.
I vostri vantaggi a colpo d'occhio:
· Spazio ufficio luminoso e ottimale
· Sala riunioni o soggiorno separata
· Elegante ingresso e pratica cucina
· WC per donne e uomini con doccia
· Ascensore merci con accesso diretto allo spazio in affitto
· Ascensore per passeggeri separato tramite le scale
· Sistemi di ombreggiam...
Dettagli immobile
- Disponibile dal
- Su accordo



