Spazio ufficio in affitto - Stampfenbachstrasse 6, 8001 Zürich
Perché amerai questa proprietà
Posizione centrale, 4 min HB
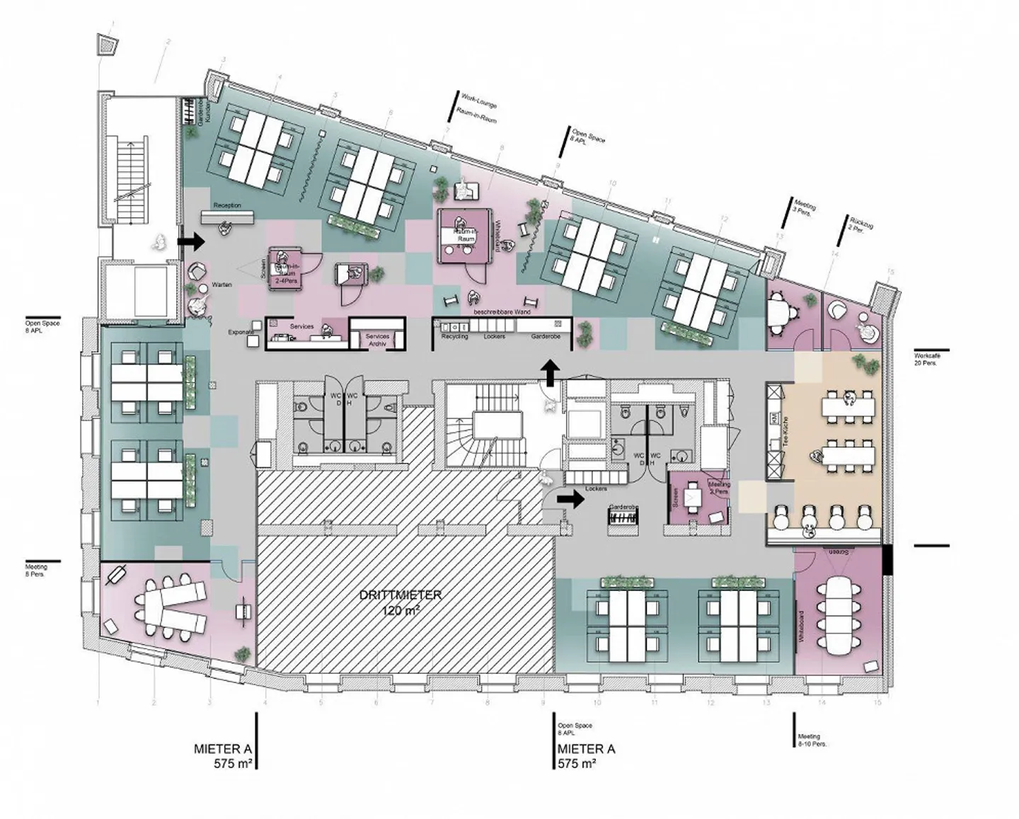
Configurazioni spaziali flessibili
Servizi moderni e design
Organizza una visita
Prenota una visita con Fitzi oggi!
Direttamente al central - 4min dalla stazione principale
Spazio ufficio rappresentativo in una posizione esclusiva al Central – a soli 4 minuti dalla stazione centrale di Zurigo.
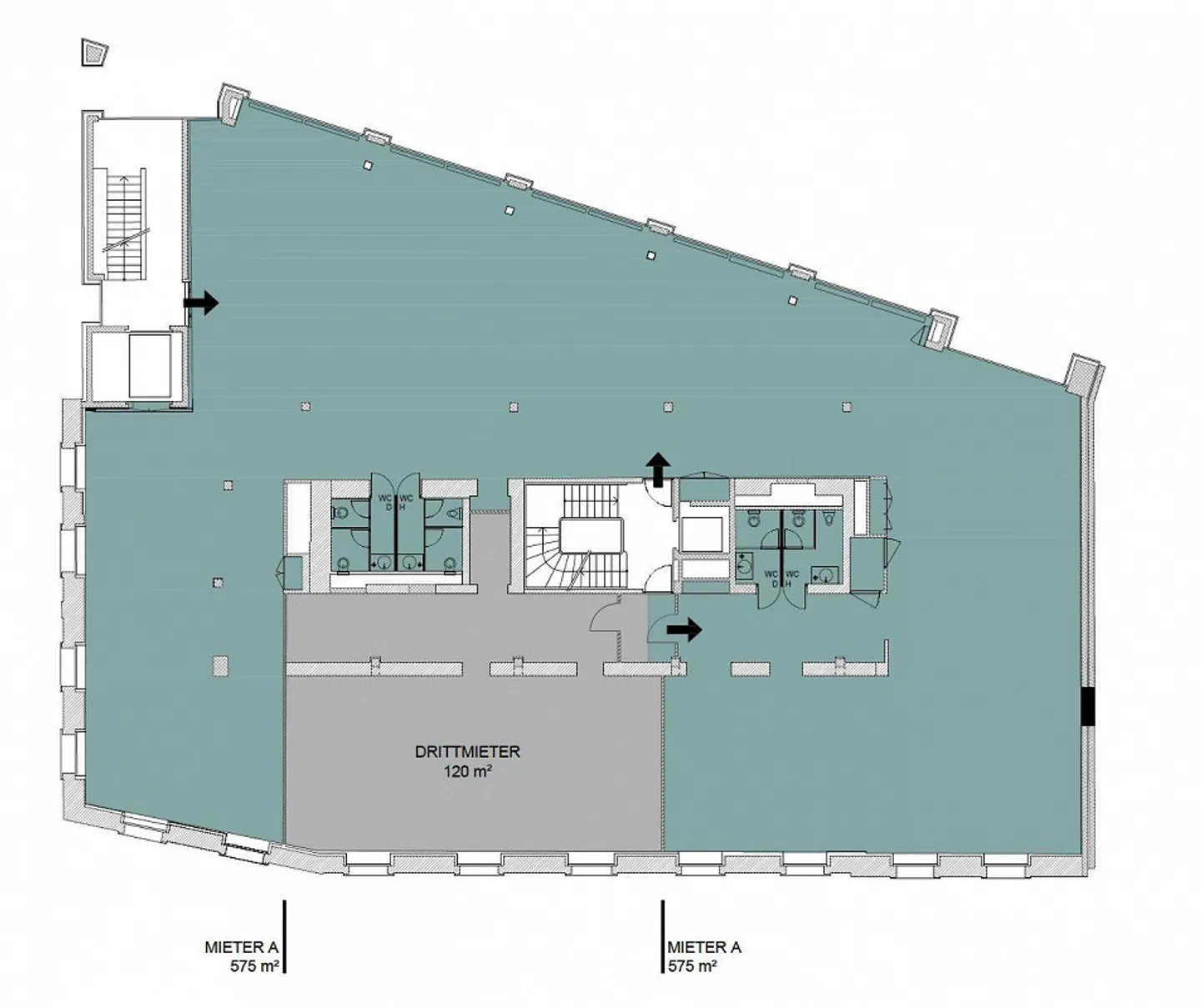
In una posizione centrale a Zurigo, a soli 250 metri dalla stazione principale, offriamo 700 m² di spazio ufficio con grandi facciate vetrate.
Varianti di spazio: 280 m² / 295 m² / 415 m² / 700 m² disponibili – numerose altre varianti possibili.
La proprietà si trova direttamente alla fermata del tram "Central" e si distingue per un'ottima accessibilità – sia con i mezzi pubblic...
Dettagli immobile
- Disponibile dal
- Su accordo



