Spazio ufficio in affitto - Rue de la Croix-d'Or 6, 1204 Genève
Perché amerai questa proprietà
Spazio ristrutturato di alta gamma
Setup plug and play
Servizi in posizione centrale
Organizza una visita
Prenota una visita oggi!
Uffici in affitto in un edificio iconico nel centro di Ginevra
Uffici in affitto in un edificio iconico nel centro di Ginevra
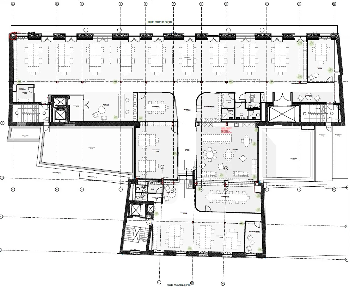
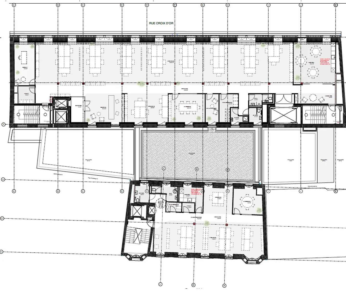
Oltre 3.600 m2 di spazi per uffici sono disponibili per l'affitto in questo edificio di alta gamma, completamente ristrutturato. Situato in Rue de la Croix d'Or, questo edificio combina perfettamente storia e modernità. L'ambiente di lavoro è ideale, nel cuore del centro città, vicino a tutti i servizi (hub di trasporto pubblico, ristoranti, servizi...).
- Sistema di riscaldamento e raffreddamento a soffitto attivo
- Ascensori e control...
Dettagli immobile
- Disponibile dal
- Su accordo
- Anno di costruzione
- 1945
- Superficie abitabile
- 150 m²



