Spazio ufficio in affitto - Rue de la Croix-d'Or 6, 1204 Genève
Perché amerai questa proprietà
Fascino di un edificio storico
Setup plug and play
Servizi in centro città
Organizza una visita
Prenota una visita oggi!
Uffici "plug and play" in affitto in un edificio iconico nel centro di ginevra
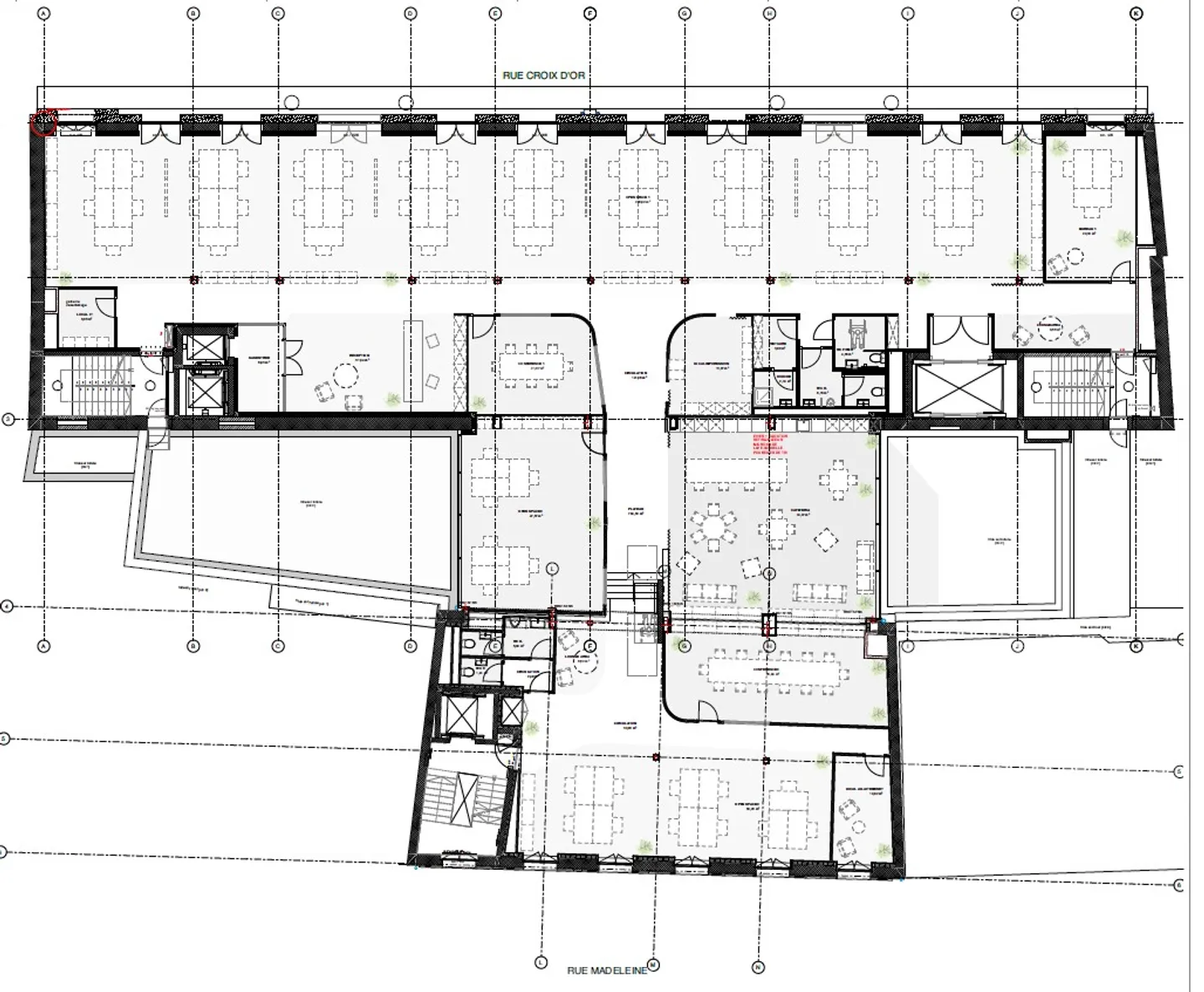
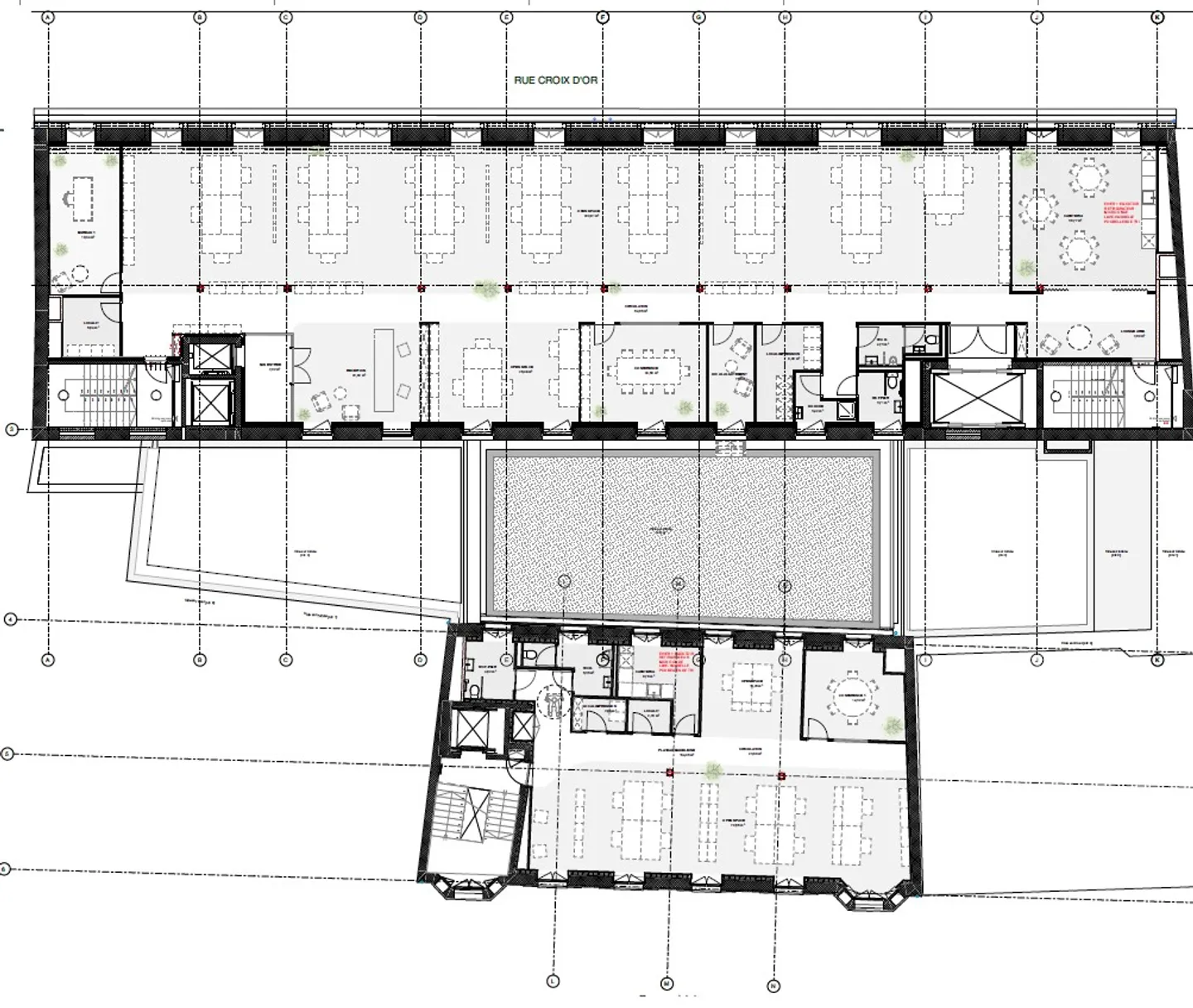
In affitto - 3600 m2 di superficie per uffici in un edificio di alta classe e completamente ristrutturato. Situato in Rue de la Croix d'Or, questo edificio combina perfettamente storia e modernità. L'ambiente di lavoro è ideale, nel cuore del centro città e vicino a tutti i servizi (hub di trasporto pubblico, ristoranti, servizi...).
Gli spazi sono distribuiti come segue:
- Piani di 980 m2 ai 2°, 3° e 4° piani
- Locali di 450 e 150 m2 ai 5° e 6° piani
Caratteristiche dei locali:
- Sistema di riscalda...
Dettagli immobile
- Disponibile dal
- Su accordo
- Superficie abitabile
- 800 m²



