Commerciale in affitto - Plazza Staziun 6, 7013 Domat/Ems
Perché amerai questa proprietà
Facciata in mattoni architettonica
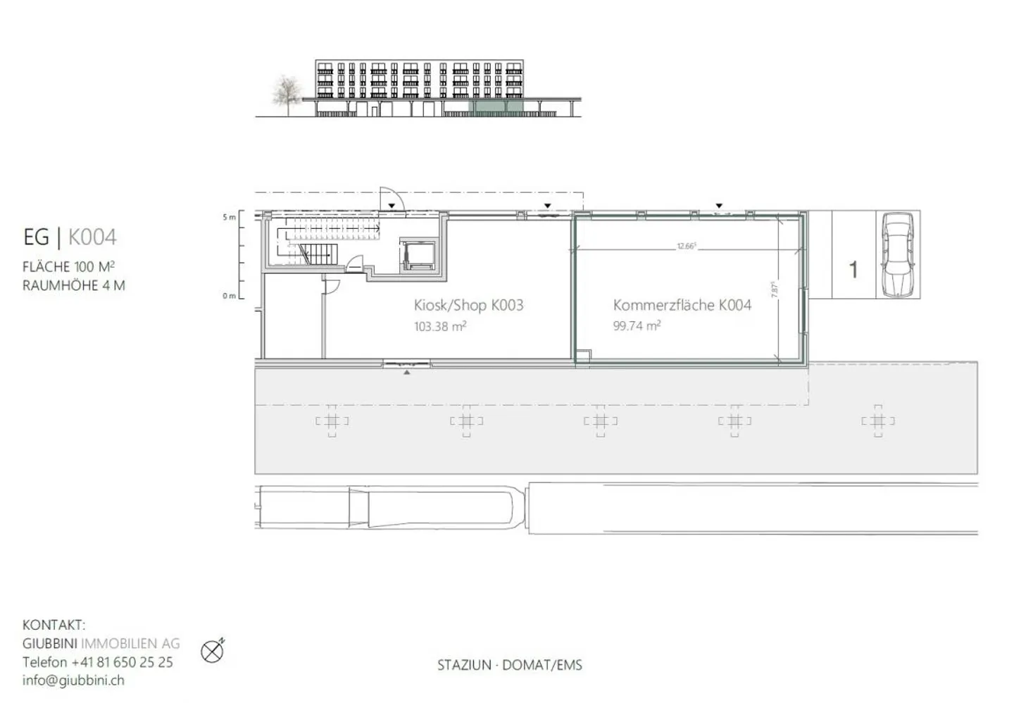
Layout flessibile di 100 m2
Sistemi energetici sostenibili
Organizza una visita
Prenota una visita con Rossi oggi!
Bahnhofplatz domat/ems | spazio commerciale al piano terra (k004)
Presso la stazione di Domat/Ems, la <>, si trova un immobile commerciale architettonicamente rappresentativo che presenta sia una facciata in clinker di alta qualità che distintiva.
Nel nuovo sviluppo centrale Staziun, troverete un ambiente di lavoro attraente e beneficerete di un'infrastruttura diversificata. Caffè, panetteria e varie opzioni di shopping sono disponibili direttamente nell'edificio. E con il collegamento immediato ai mezzi pubblici, rimarrete mobili e flessibili.
Lo spazio s...
Dettagli immobile
- Disponibile dal
- Su accordo
- Anno di costruzione
- 2024



