Commerciale in affitto - Chemin Du Glapin 6, 1162 St-Prex
Perché amerai questa proprietà
Altezza dei soffitti generosa
Ventilazione a doppio flusso
Spazi semi-finiti personalizzabili
Organizza una visita
Prenota una visita oggi!
Consegna all'inizio del 2026 - spazi luminosi in un piccolo edificio nel cuore di un'area artistica
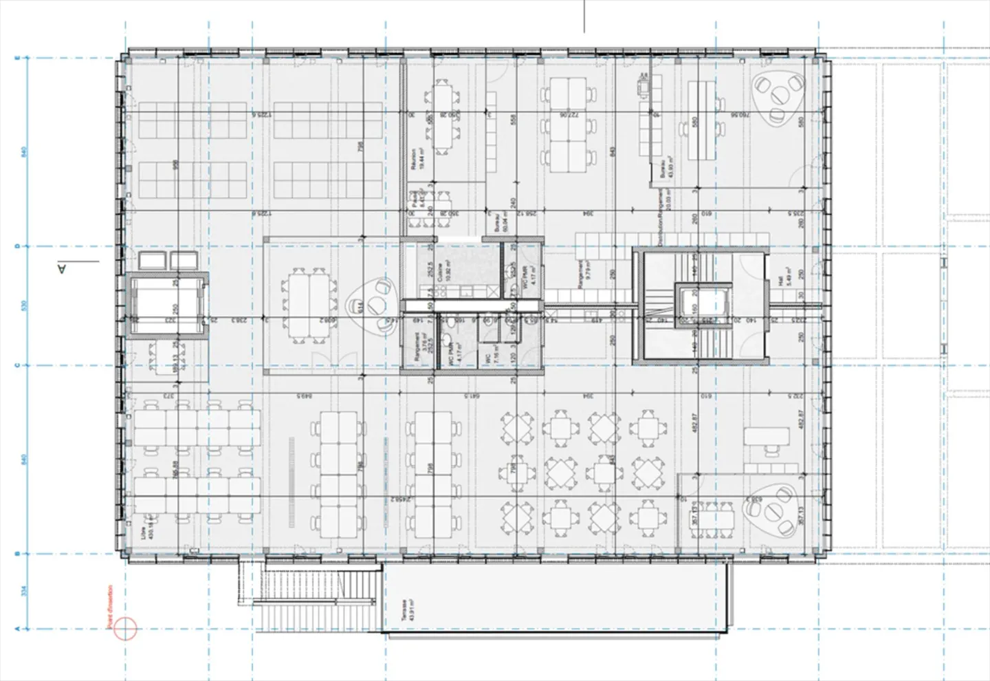
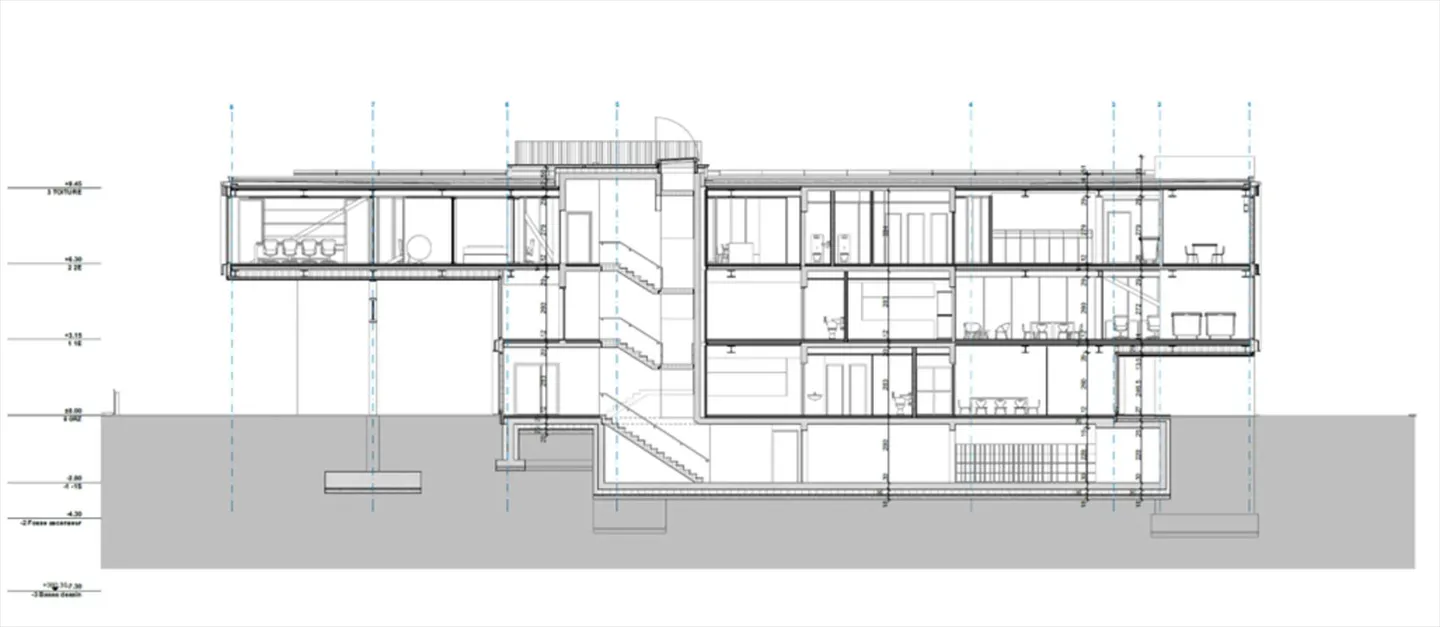
Situato al 1° piano, questo eccezionale spazio di 598 m² è ideale per l'installazione dei vostri uffici, del vostro showroom o del vostro laboratorio - altezza generosa, ventilazione a doppio flusso e isolamento acustico.
Questo sito offre un ambiente di lavoro privilegiato, con locali di qualità, numerosi posti auto e una posizione ideale rispetto alla città di Morges, al porto e ai mezzi pubblici.
Gli spazi vengono consegnati semi-finiti e possono essere adattati alle vostre esigenze, in parti...
Dettagli immobile
- Disponibile dal
- Su accordo
- Superficie abitabile
- 598 m²
- Superficie utilizzabile
- 598 m²



