Commerciale in affitto - Rue Des Envers 58, 2400 Le Locle
Perché amerai questa proprietà
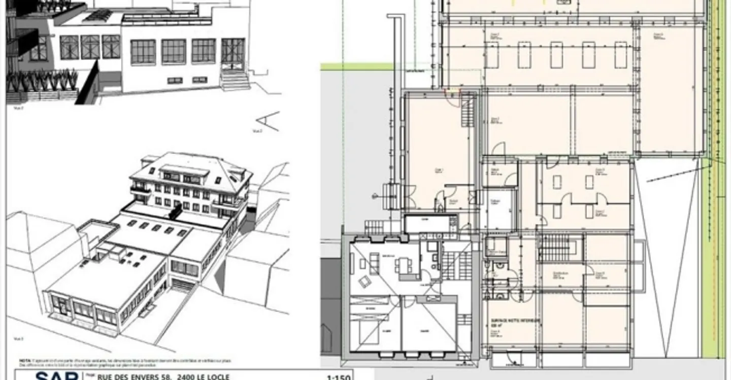
Opzioni di layout personalizzabili
Accesso al piano terra
Ideale per vari tipi di attività
Organizza una visita
Prenota una visita oggi!
Commercio
Locali commerciali al piano terra. Finiture standard a discrezione dell'inquilino.
Dettagli immobile
- Disponibile dal
- Su accordo



