Spazio ufficio in affitto - Jurastrasse 58, 5430 Wettingen
Perché amerai questa proprietà
Opzioni di layout flessibili
Ottimo accesso ai trasporti
Magazzino e parcheggio disponibili
Organizza una visita
Prenota una visita con Blanc oggi!
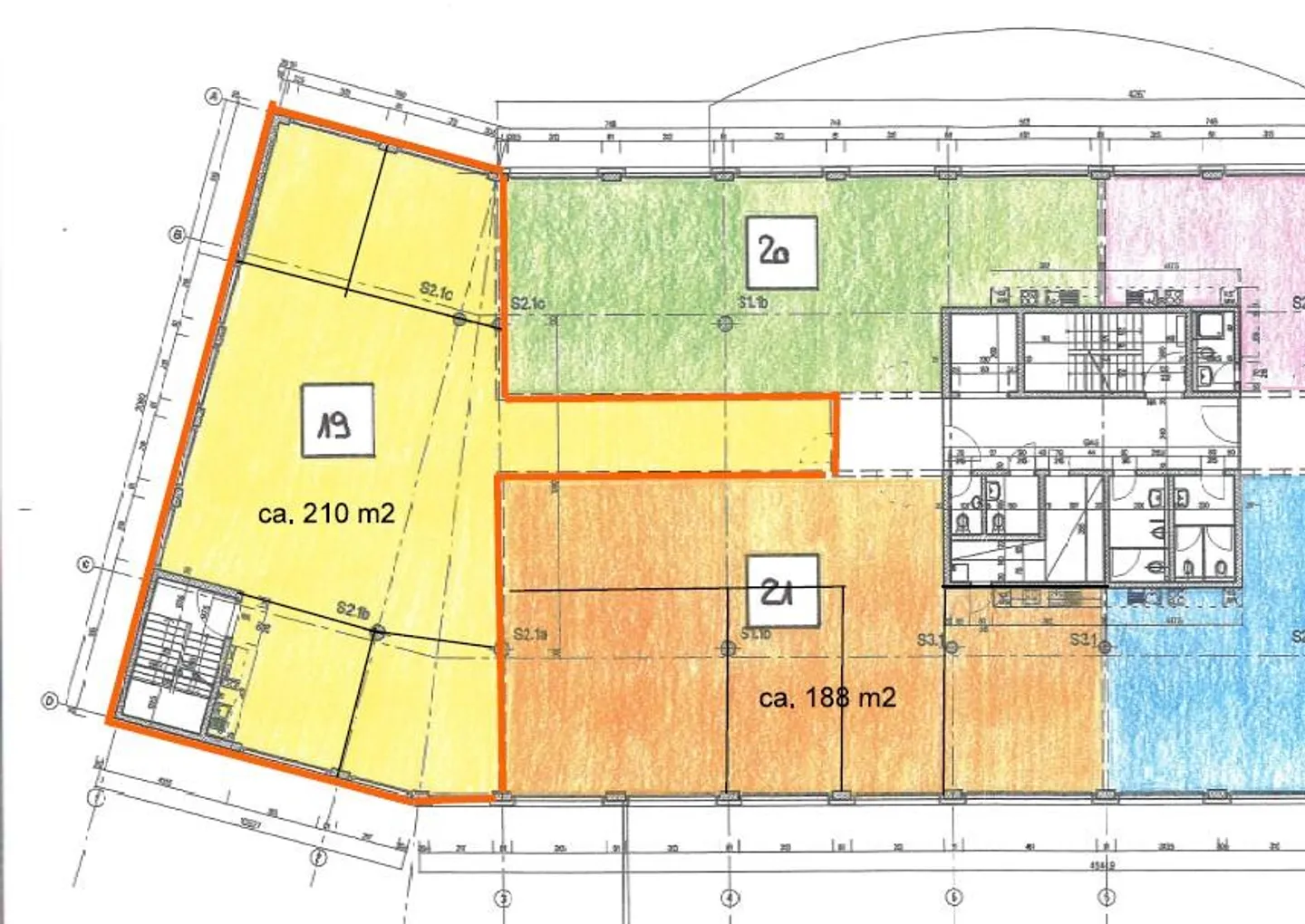
Il tuo nuovo studio, atelier o ufficio - 210 m² con potenziale
Inizia il tuo percorso in una posizione attraente a Wettingen, a pochi passi dal popolare Tägipark!
Questo spazio commerciale luminoso e flessibile di 188 m² ti offre la base ideale per il tuo successo - sia che si tratti di PMI, studio medico, atelier o studio creativo.
I tuoi punti salienti:
- Tanto spazio con 210m² di superficie utile (Piano n. 19)
- Suddivisione flessibile degli spazi - adatta al tuo concetto
- Perfetta accessibilità in auto e con i mezzi pubblici
- Magazzini e posti auto disponib...
Ripartizione dei costi
- Affitto netto
- CHF 3’490
- Costi aggiuntivi
- CHF 500
- Totale delle locazioni
- CHF 3’490
Dettagli immobile
- Disponibile dal
- Su accordo




