Spazio ufficio in affitto - Chemin De L' Etang 55, 1219 Châtelaine
Perché amerai questa proprietà
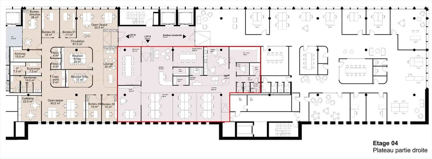
Layout dell'ufficio personalizzabile
Edificio luminoso e moderno
Ottimo accesso ai trasporti
Organizza una visita
Prenota una visita oggi!
Ufficio
In affitto – Uffici grezzi da allestire nel Quartiere de l'Étang
Scopri questi uffici grezzi situati al 4° piano di un edificio moderno e funzionale, nel cuore del Quartiere de l'Étang a Ginevra.
Ideale per le aziende in cerca di uno spazio modulare e scalabile, questa proprietà offre la possibilità di un allestimento su misura, realizzato dal proprietario a fronte di un canone aggiuntivo attraente.
Punti salienti:
- Uffici grezzi da allestire secondo le tue esigenze
- Possibilità di allestimento ...
Dettagli immobile
- Disponibile dal
- Su accordo
- Superficie abitabile
- 362 m²



