Commerciale in affitto - 5070 Frick
Perché amerai questa proprietà
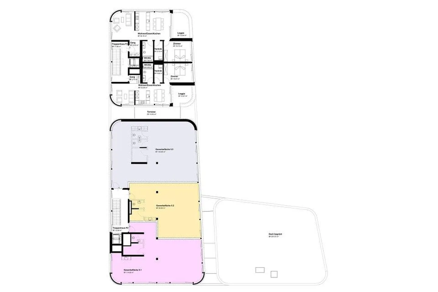
Layout flessibili
Posizione centrale
Soluzioni energetiche sostenibili
Organizza una visita
Prenota una visita con Rebmann oggi!
Industria
"Blaie" Frick: Il tuo futuro per il tuo business
Sei uno degli imprenditori che pianificano il proprio futuro commerciale in modo tempestivo, a lungo termine e ponderato?
Allora dovresti dare un'occhiata più da vicino al progetto Blaie a Frick. Questo nuovo centro commerciale, situato nelle immediate vicinanze della stazione ferroviaria SBB con eccellenti collegamenti a Basilea e Zurigo e buona visibilità, stabilirà nuovi standard.
Proprietà
Vengono offerti spazi diversi che possono essere adatt...
Dettagli immobile
- Disponibile dal
- Su accordo



