Spazio ufficio in affitto - Weinbergstrasse 5, 8001 Zürich
Perché amerai questa proprietà
Posizione centrale ideale
Opzioni di spazio flessibili
Servizi moderni inclusi
Organizza una visita
Prenota una visita con Fitzi oggi!
Ideale per i pendolari - 250 m dalla stazione centrale
4 minuti dalla stazione centrale di Zurigo, spazio esclusivo nel Centralhaus
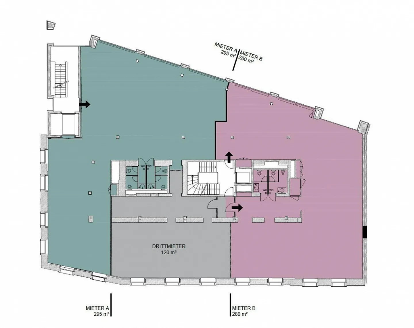
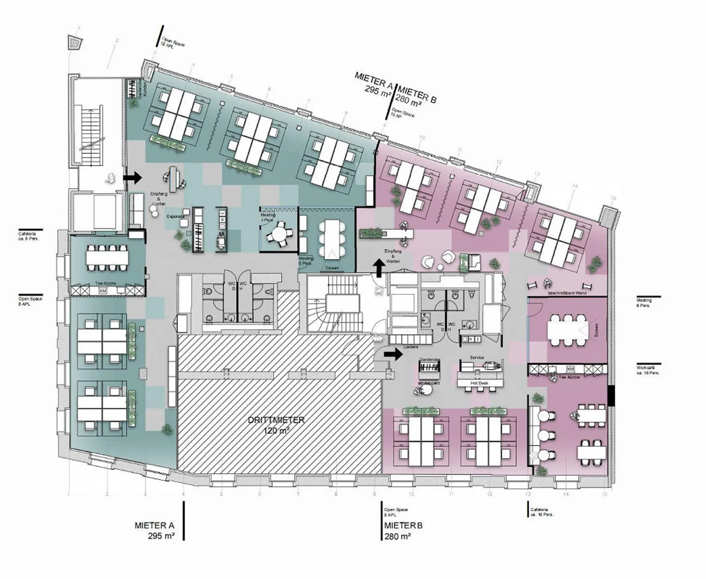
A partire dal 1 marzo 2025, vi offriamo l'opportunità esclusiva di affittare uno spazio per uffici di 575 m² nel Centralhaus. È anche possibile affittare una superficie parziale di 280 m² o 295 m². Lo spazio al primo piano dispone di stanze alte, con ventilazione e soffitti refrigerati, cablaggio elettrico e IT. Le aree sono attualmente riportate alla costruzione di base in modo che possiate portare il vostro ampliamento...
Dettagli immobile
- Disponibile dal
- Su accordo



