Spazio di archiviazione in affitto - Sportstrasse 5, 9200 Gossau SG
Perché amerai questa proprietà
Luminoso con luce naturale
Accesso con ingresso privato
Fornito di acqua
Organizza una visita
Prenota una visita con Xeno oggi!
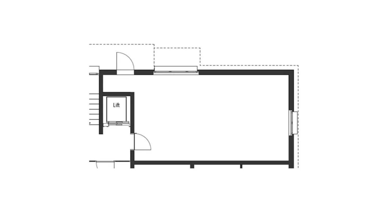
Stanza per hobby / Magazzino in affitto a Gossau SG!
In Sportstrasse 5 a 9200 Gossau, affittiamo una stanza per hobby / magazzino con i seguenti vantaggi:
-Luce naturale
-ingresso separato
-Collegamento elettrico
-Collegamento idrico
-Ascensore disponibile
Si prega di notare che la foto è un'immagine speculare della stanza, attualmente utilizzata come stanza per biciclette. Tuttavia, la dimensione e la disposizione del magazzino disponibile sono identiche.
Per ulteriori informazioni o per un appuntamento di visita senza impegno, siamo a vostra disposiz...
Ripartizione dei costi
- Affitto netto
- CHF 440
- Costi aggiuntivi
- CHF 120
- Totale delle locazioni
- CHF 440
Dettagli immobile
- Disponibile dal
- 01.07.2026
- Superficie abitabile
- 45 m²
- Superficie utilizzabile
- 45 m²



