Spazio ufficio in affitto - Rue Docteur-Alfred-Vincent 5, 1201 Genève
Perché amerai questa proprietà
Ideale per uso medico
Posizione tranquilla in centro
Parcheggio disponibile in loco
Organizza una visita
Prenota una visita oggi!
Superficie professionale di 401 m2
Questo edificio è situato idealmente nel centro della città sulla riva destra, a 9 minuti a piedi dalla stazione di Cornavin e a due passi dal lago, in una strada molto tranquilla. Un bel ingresso vi accoglie!
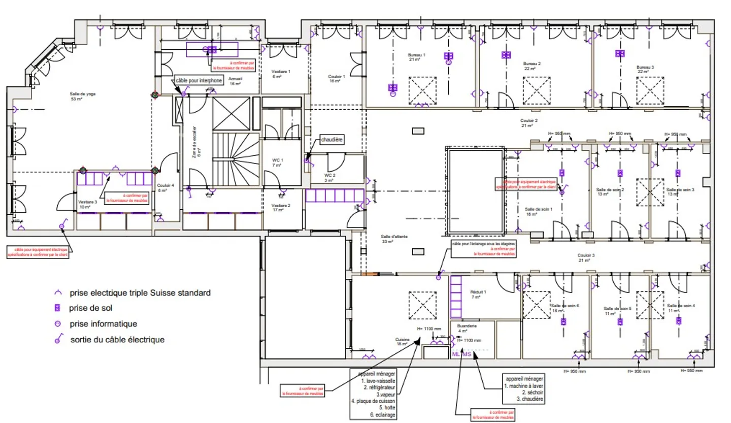
Vi proponiamo al 1° piano, una superficie professionale che costituisce l'intero pianerottolo, ideale per un'attività medica o un istituto di bellezza.
È composta come segue:
- area di accoglienza
- area di attesa
- 9 stanze di cui 3 sono dotate di punti acqua e una con doccia
- 1 open-space
- 1 ...
Ripartizione dei costi
- Affitto netto
- CHF 14’800
- Costi aggiuntivi
- CHF 1’500
- Totale delle locazioni
- CHF 14’800
Dettagli immobile
- Disponibile dal
- Su accordo
- Superficie abitabile
- 401 m²
- Superficie utilizzabile
- 401 m²



