Negozio in affitto - Route De Sauverny 5, 1290 Versoix
Perché amerai questa proprietà
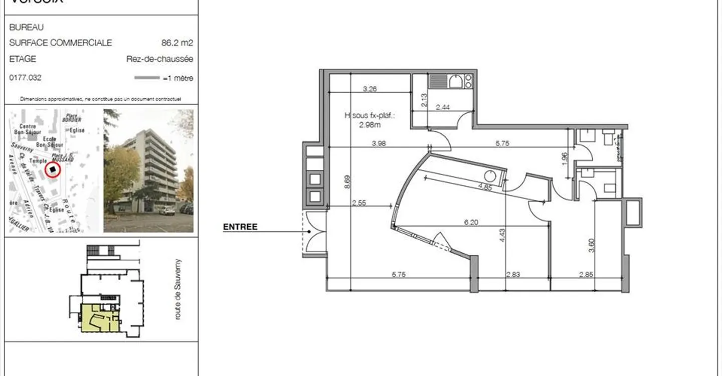
Superficie di 93 m² ben distribuita
Grandi vetrine a triplo vetro
Facciata recentemente ristrutturata
Organizza una visita
Prenota una visita con maison.work oggi!
DA AFFITTARE? Arcade luminosa di 93 m² a Versoix
Situata in Route de Sauverny 5, direttamente parallela alla Route Suisse, questa arcade commerciale beneficia di una posizione comoda e visibile, nel cuore di un dinamico quartiere residenziale di Versoix, in immediata prossimità di servizi e assi di passaggio.
Vantaggi principali:
- Superficie di 93 m² ben progettata
- Belle vetrine (triplo vetro) che offrono un'ottima visibilità
- Locali luminosi con facciata dell'edificio recentemente ristruttura...
Ripartizione dei costi
- Affitto netto
- CHF 3’100
- Costi aggiuntivi
- CHF 100
- Totale delle locazioni
- CHF 3’100
Dettagli immobile
- Disponibile dal
- Su accordo
- Superficie abitabile
- 93 m²
- Superficie utilizzabile
- 93 m²



