Spazio ufficio in affitto - Hohenrainstrasse 5, 6280 Hochdorf
Perché amerai questa proprietà
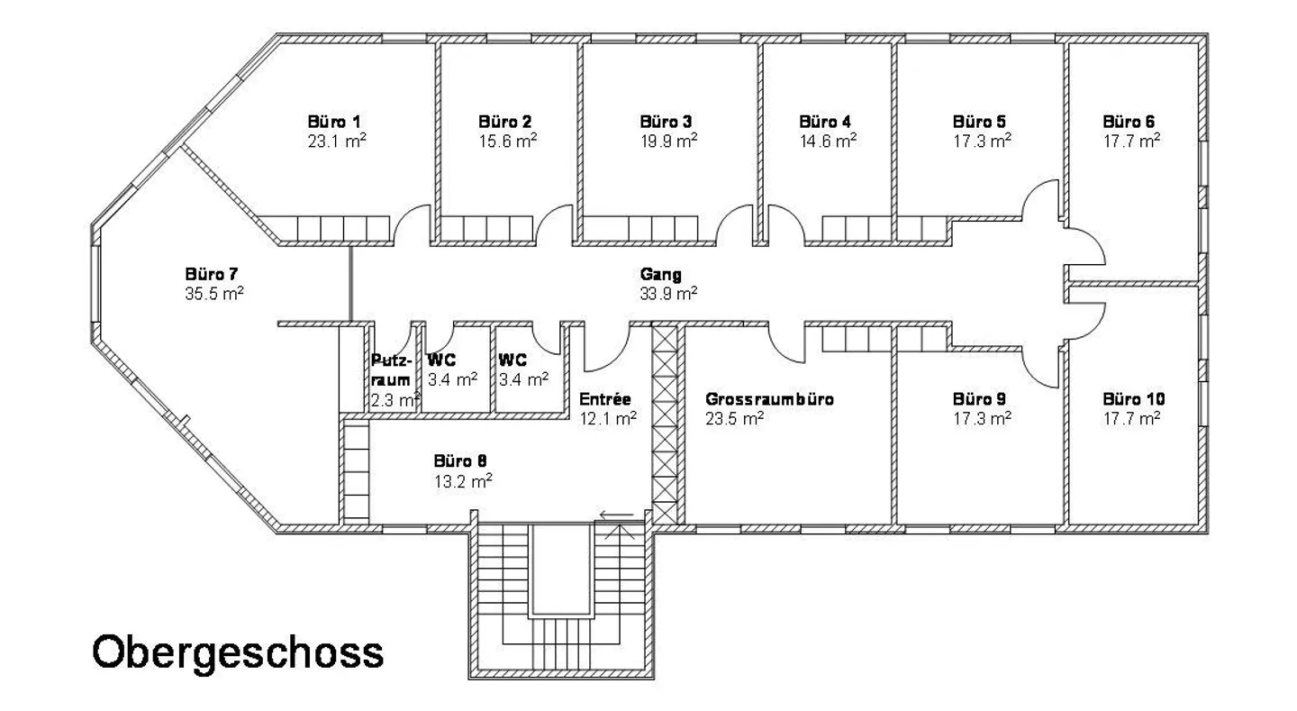
Opzioni di layout flessibili
Parcheggio diretto disponibile
Vicino ai mezzi pubblici
Organizza una visita
Prenota una visita con Stauffer oggi!
Spazi per uffici / formazione / atelier spaziosi
Nel centro di Hochdorf, ben collegato, affittiamo locali spaziosi. Questi sono adatti come spazi per uffici / scuole / formazione / atelier. Layout generoso con armadi a muro e angolo cottura. Parcheggio disponibile direttamente di fronte alla casa. I mezzi pubblici e i negozi sono raggiungibili a piedi in pochi minuti. I desideri dei nuovi inquilini possono essere presi in considerazione durante la ristrutturazione dei locali.
Ripartizione dei costi
- Affitto netto
- CHF 3’600
- Costi aggiuntivi
- CHF 400
- Totale delle locazioni
- CHF 3’600
Dettagli immobile
- Disponibile dal
- Su accordo
- Anno di costruzione
- 1970
- Anno di ristrutturazione
- 2009



