1 / 5

Negozio in affitto - Baselstrasse 48, 4125 Riehen

CHF 3’050.-
-

Perché amerai questa proprietà

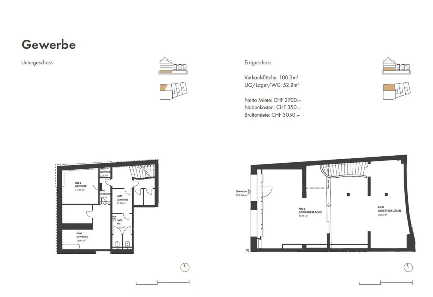
Ampia superficie di 153 m2

Grandi finestre per visibilità

Posizione centrale con passaggio pedonale

Organizza una visita

Prenota una visita oggi!

PRIVERA AG
Questa descrizione è stata tradotta automaticamente da Tedesco.

Ottima opportunità nel centro di riehen - prima locazione dopo ristrutturazione completa

Ottima opportunità nel centro di Riehen - prima locazione dopo ristrutturazione completa Sulla strada principale di Riehen, in un progetto di ristrutturazione architettonicamente interessante (ex cinema), sta nascendo uno spazio commerciale luminoso con una generosa vetrina e un'atmosfera urbana. Il piano terra è ideale per il retail, showroom, studio, pratica, agenzia o fornitore di servizi.

* Affitto in stato grezzo

* 153 m2 di superficie con una disposizione moderna e interessante degli spazi

* ...

Dettagli immobile

Disponibile dal
Su accordo

Agenzia

PRIVERA AG
Online da
16/07/2025
3 mesi fa

Località

Baselstrasse 48, 4125 Riehen