Spazio ufficio in affitto - Sennweidstrasse 47, 6312 Steinhausen
Perché amerai questa proprietà
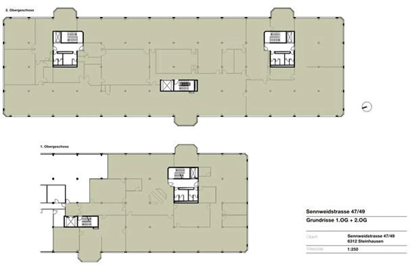
Layout degli spazi flessibili
Termini di affitto convenienti
Ottimi collegamenti di trasporto
Organizza una visita
Prenota una visita con Andreas oggi!
Utilizzo temporaneo a condizioni vantaggiose - Spazi affittabili flessibili da 250 m² a 3.024 m²
Stai cercando uffici e spazi commerciali di cui puoi determinare la dimensione in modo flessibile? Facci sapere le tue esigenze di spazio (superficie locativa minima di 250 m²) e verificheremo volentieri le opzioni adatte.
È prevista una ristrutturazione completa per l'edificio per uffici e commerciali in Sennweidstrasse 47/49 a Steinhausen a partire dalla fine del 2029. Per un utilizzo temporaneo, affittiamo spazi per uffici e commerciali flessibili su una superficie totale di 3.024 m², che com...
Dettagli immobile
- Disponibile dal
- 01.02.2026
- Anno di costruzione
- 1989
- Superficie abitabile
- 500 m²
- Superficie utilizzabile
- 500 m²



