Spazio ufficio in affitto - Kägiswilerstrasse 46, 6060 Sarnen
Perché amerai questa proprietà
Layout personalizzabili
Spazi luminosi e ampi
Accesso facile e parcheggio
Organizza una visita
Prenota una visita oggi!
Spazi per uffici e commerciali attraenti in affitto a sarnen
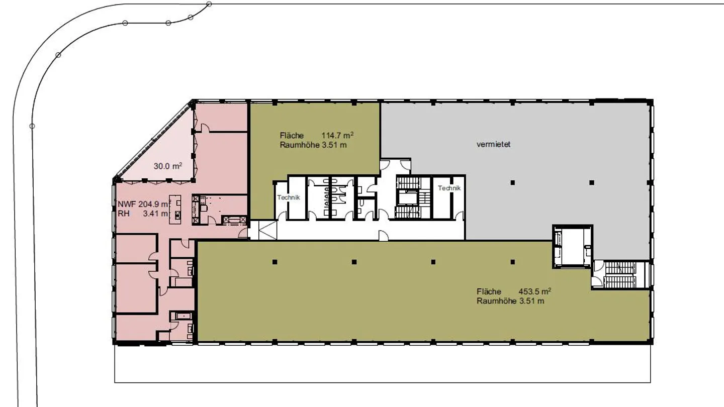
Al 2° piano di un moderno edificio commerciale a Sarnen, affittiamo spazi commerciali utilizzabili in modo flessibile in stato grezzo. Gli spazi offrono molto spazio per le tue idee e possono essere personalizzati in base alle tue esigenze - sia come ufficio, studio o per scopi commerciali.
Spazi disponibili:
2° piano: 114,7 m²
2° piano: 453,5 m²
Affitto:
CHF 160.00 affitto annuale in stato grezzo (netto) per m2
- Progettazione degli spazi flessibile a piacere
- Servizi igienici comuni disponibili
- Spa...
Dettagli immobile
- Disponibile dal
- Su accordo
- Anno di costruzione
- 2024



