Portico in affitto - Avenue Blanc 46, 1202 Genève
Perché amerai questa proprietà
Vicino a organizzazioni internazionali
Cucina attrezzata e reception
Opzioni di pareti flessibili
Organizza una visita
Prenota una visita oggi!
Arcade
Sécheron - CHF 350.--m2 - spazio commerciale di circa 245 m2
Situato tra i quartieri Nations, Pâquis e il centro città, nelle immediate vicinanze:
-Organizzazioni internazionali ONU
-Stazione CFF Ginevra-Sécheron (Léman Express)
-Parco Mon Repos e riva del lago
-Ottimo accesso ai trasporti pubblici (TPG, treno, tram, autobus)
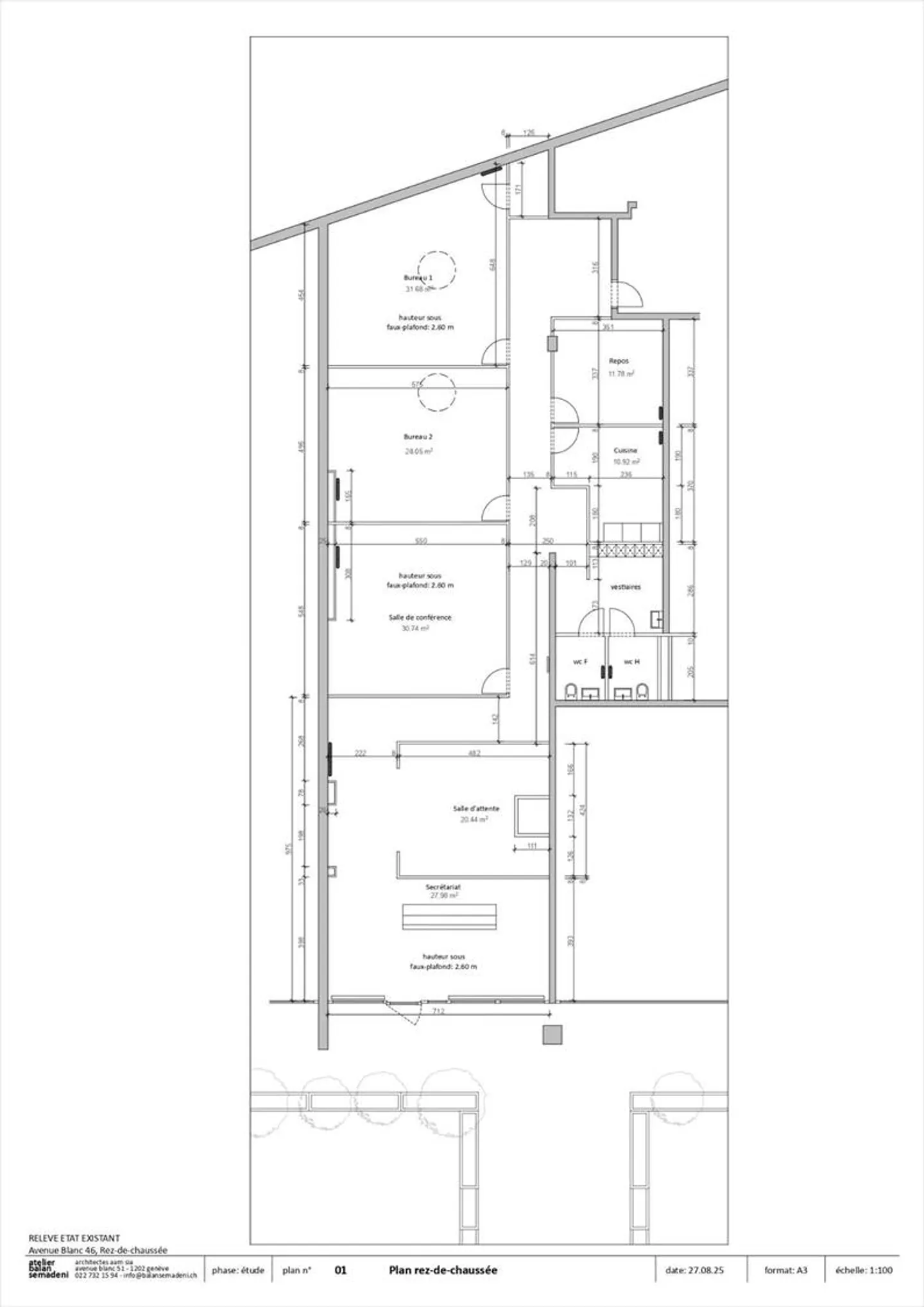
Spazio commerciale di circa 245 m2 al piano terra di un edificio residenziale.
- 3 locali di 30 m2 con lucernari
- 1 locale di 11 m2
- Vari punti acqua già esistenti nelle diverse s...
Dettagli immobile
- Disponibile dal
- Su accordo
- Superficie abitabile
- 245 m²



