Spazio ufficio in affitto - Route Des Acacias 45b, 1227 Les Acacias
Perché amerai questa proprietà
Ottimi collegamenti
Ampia area aperta
Posti auto inclusi
Organizza una visita
Prenota una visita oggi!
Officina idealmente situata
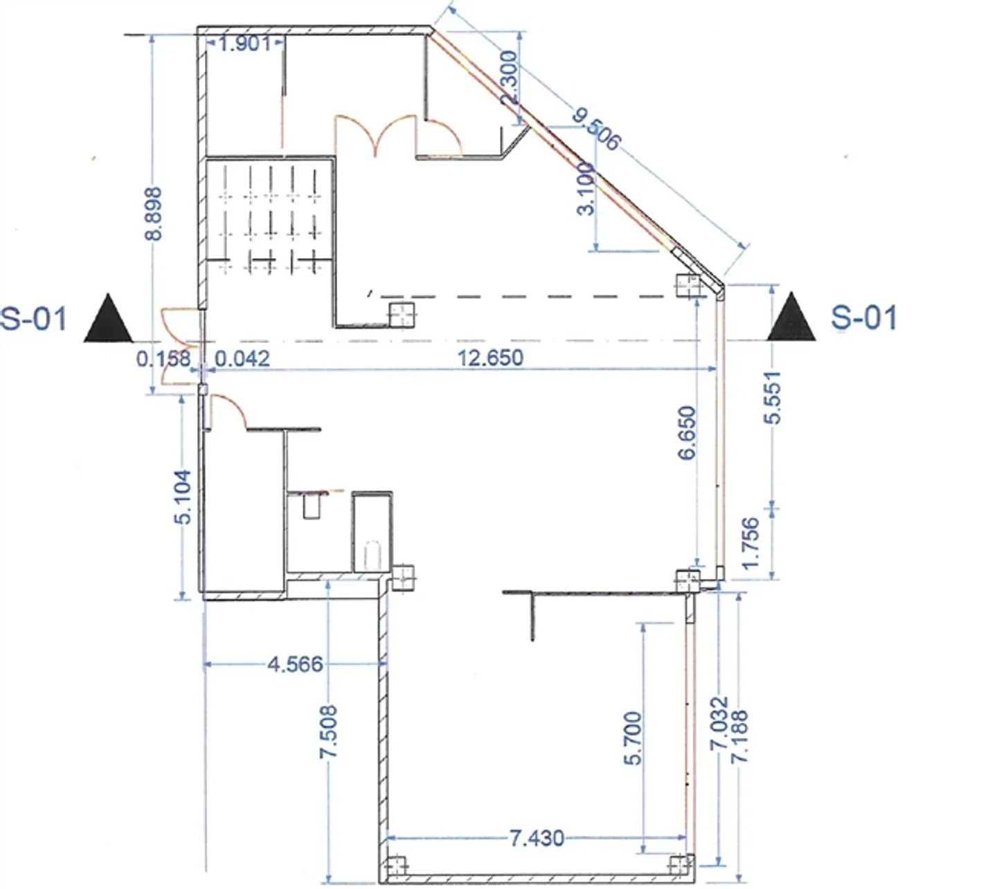
Questo edificio si trova nel quartiere PAV in rapida evoluzione e beneficia di una posizione eccellente grazie alla sua vicinanza al nuovo quartiere di Pont-Rouge e ai suoi buoni collegamenti di trasporto (CEVA, tram e autobus). L'edificio offre uno spazio di 225 m² al 1° piano, suddiviso come segue:- 1 grande spazio aperto con 1 lavandino- 1 ufficio chiuso- 2 ridotti- 1 sanitario- 2 servizi igienici sul pianerottolo delle scale- Prese trifase in periferia- 1 angolo cottura- Resina sul pavimento...
Dettagli immobile
- Disponibile dal
- Su accordo



