Spazio ufficio in affitto - Chemin C.-F. Ramuz 45, 1096 Cully
Perché amerai questa proprietà
Spazi commerciali flessibili
Certificato Minergie P
Pronto per l'operatività
Organizza una visita
Prenota una visita con Christian oggi!
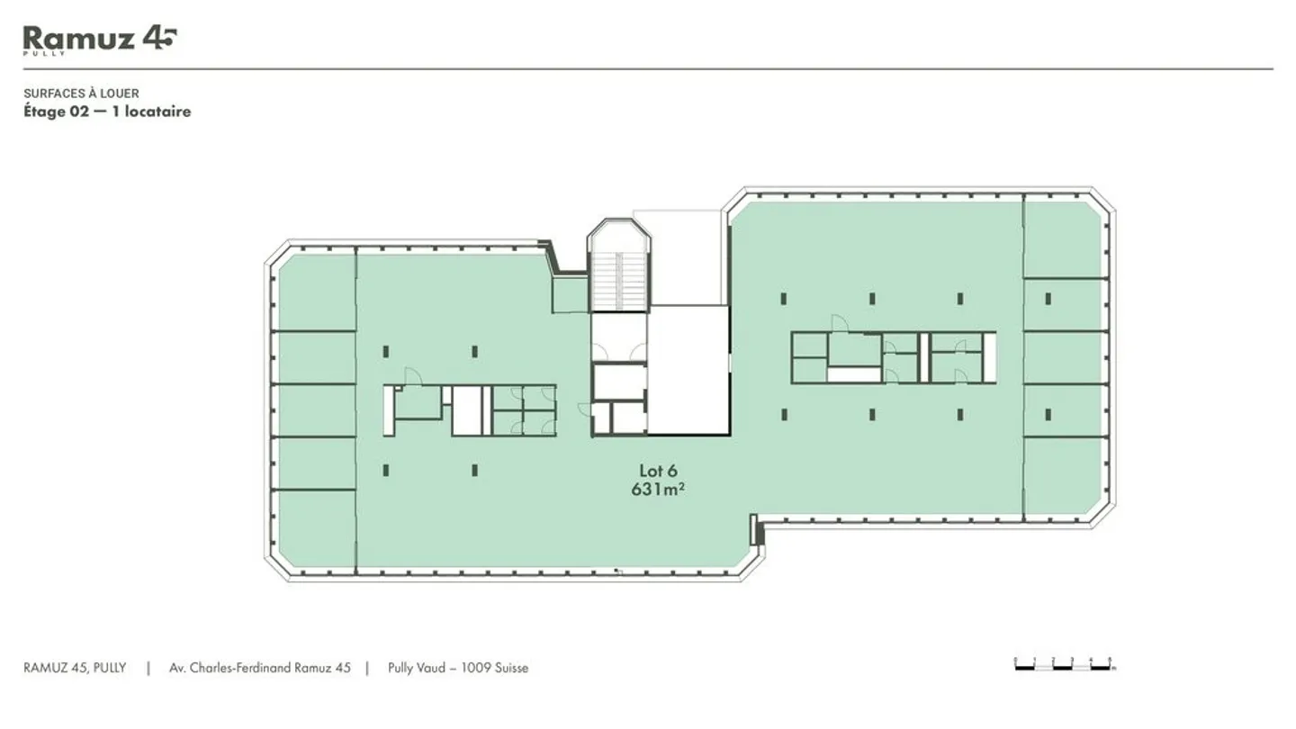
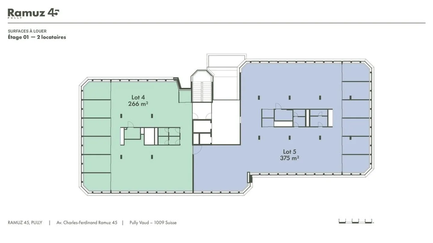
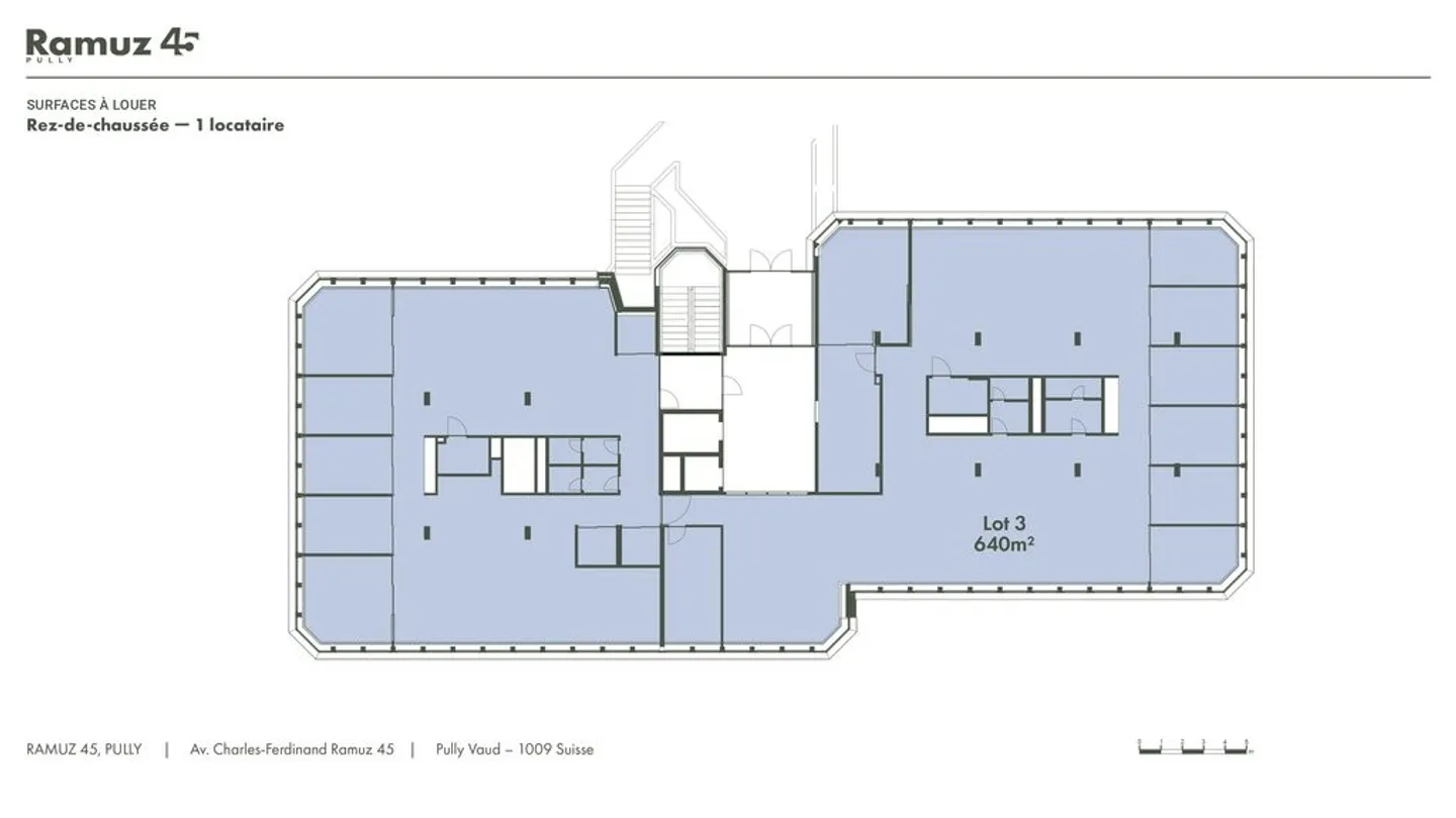
Ufficio
Spazi flessibili in un edificio ad alte prestazioni e sostenibile
Affrontato con un approccio sostenibile, il progetto Ramuz 45 offre un ambiente di lavoro ad alte prestazioni e responsabile, ideale per le aziende preoccupate per il loro impatto ambientale. Una volta ristrutturato, l'edificio raggiungerà un livello di prestazioni equivalente al marchio Minergie P, garantendo massima efficienza e un clima ambientale perfetto.
Questo edificio offre spazi commerciali distribuiti su più livelli, conse...
Dettagli immobile
- Disponibile dal
- Su accordo
- Superficie abitabile
- 2527 m²



