Spazio ufficio in affitto - Chemin C.-F. Ramuz 45, 1096 Cully
Perché amerai questa proprietà
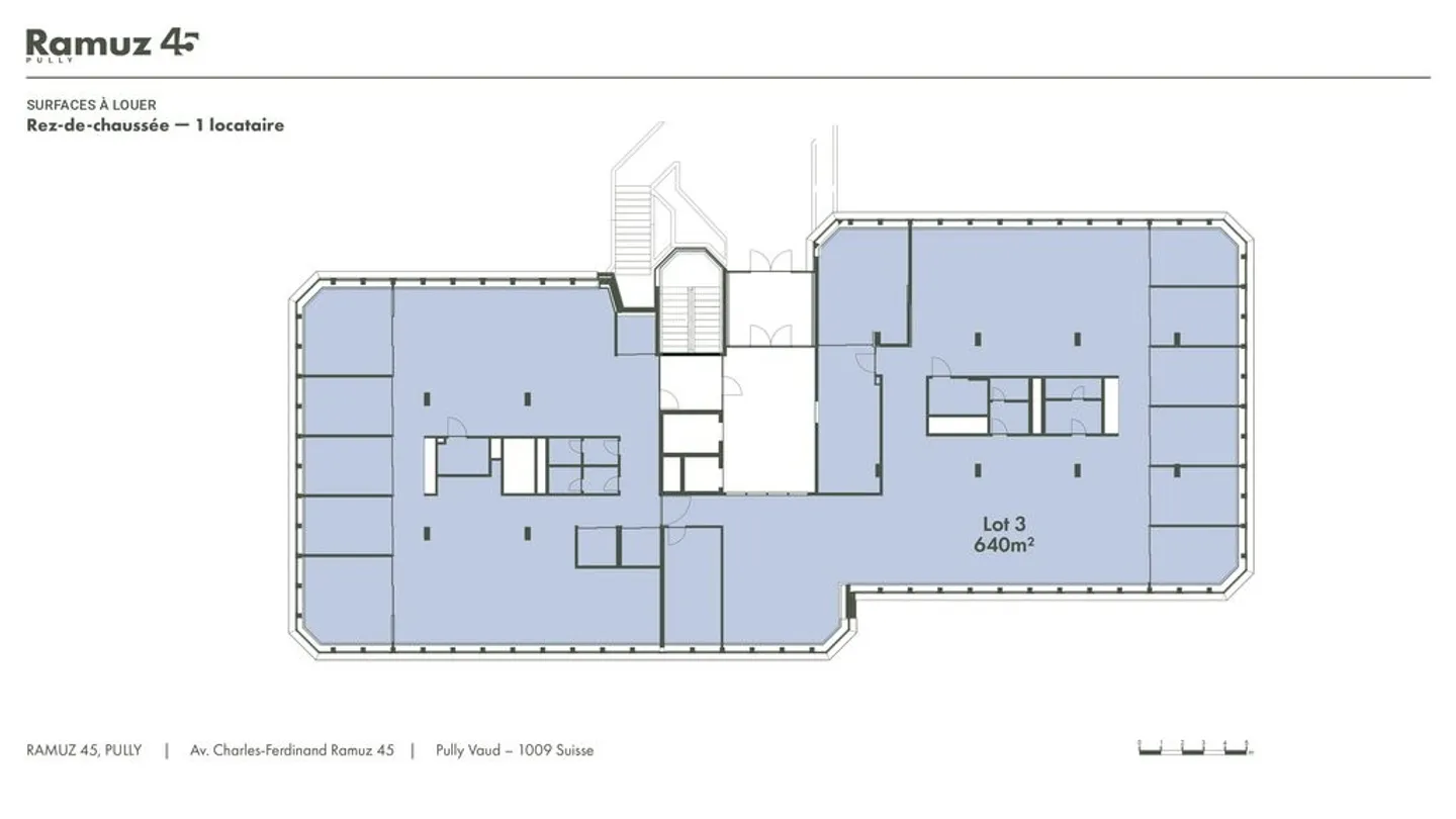
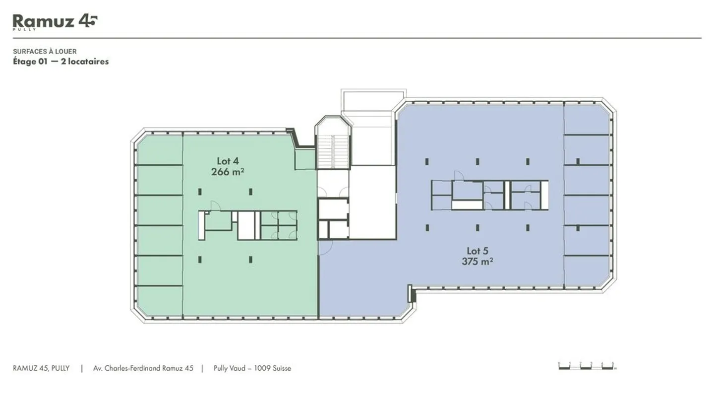
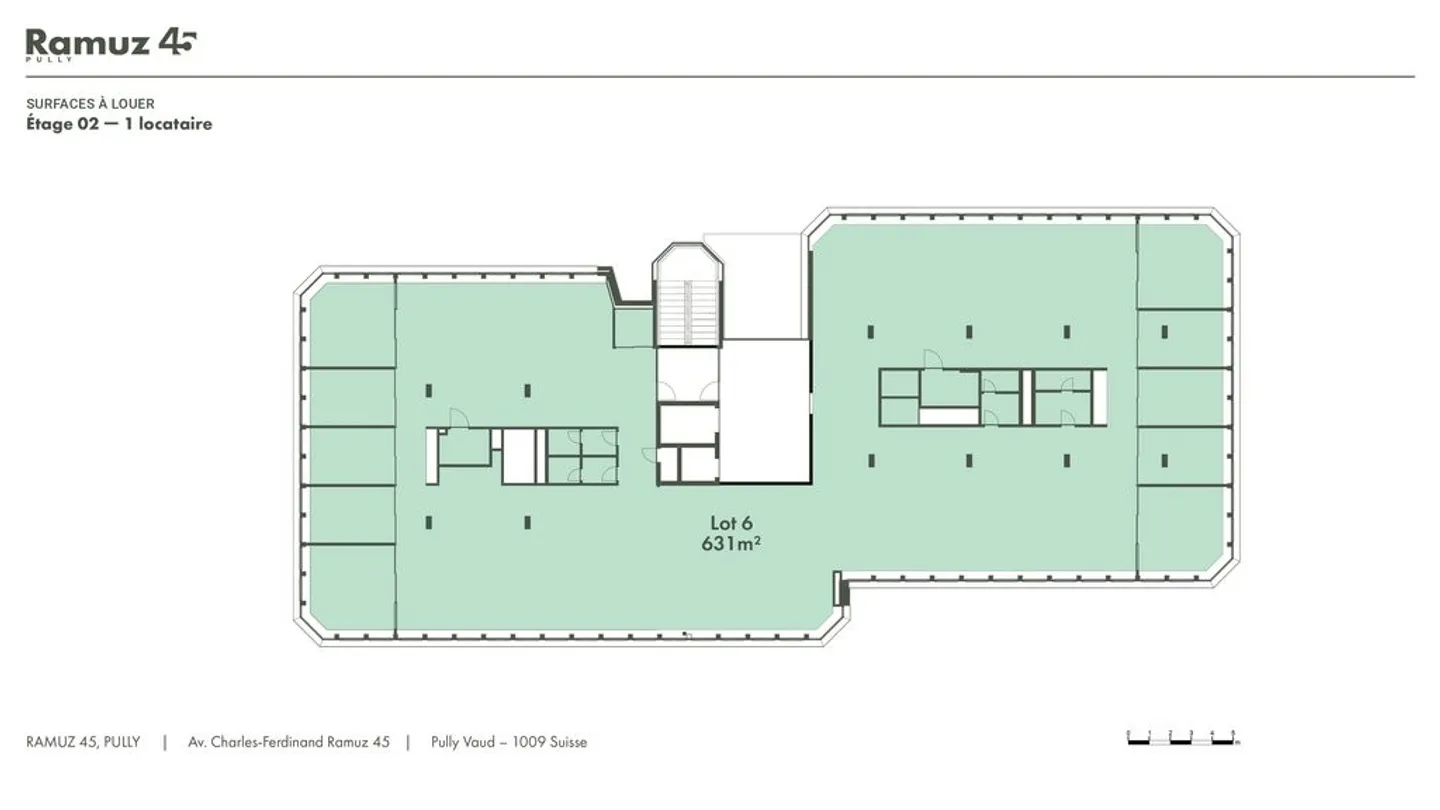
Superfici commerciali flessibili
Certificato Minergie P
Ideale per diverse attività
Organizza una visita
Prenota una visita con Christian oggi!
Ufficio
Spazi flessibili in un edificio ristrutturato, efficiente e sostenibile
Affrontato con un approccio sostenibile, il progetto Ramuz 45 offre un ambiente di lavoro performante e responsabile, ideale per le aziende attente al loro impatto ambientale. Una volta ristrutturato, l'edificio raggiungerà un livello di prestazioni equivalente al marchio Minergie P, garantendo massima efficienza e un clima ambientale perfetto.
Questo edificio offre spazi commerciali distribuiti su più livelli, consentendo una...
Dettagli immobile
- Disponibile dal
- Su accordo
- Superficie abitabile
- 631 m²



