Spazio ufficio in affitto - Chemin C.-F. Ramuz 45, 1096 Cully
Perché amerai questa proprietà
Design sostenibile
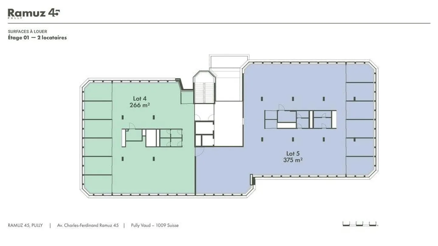
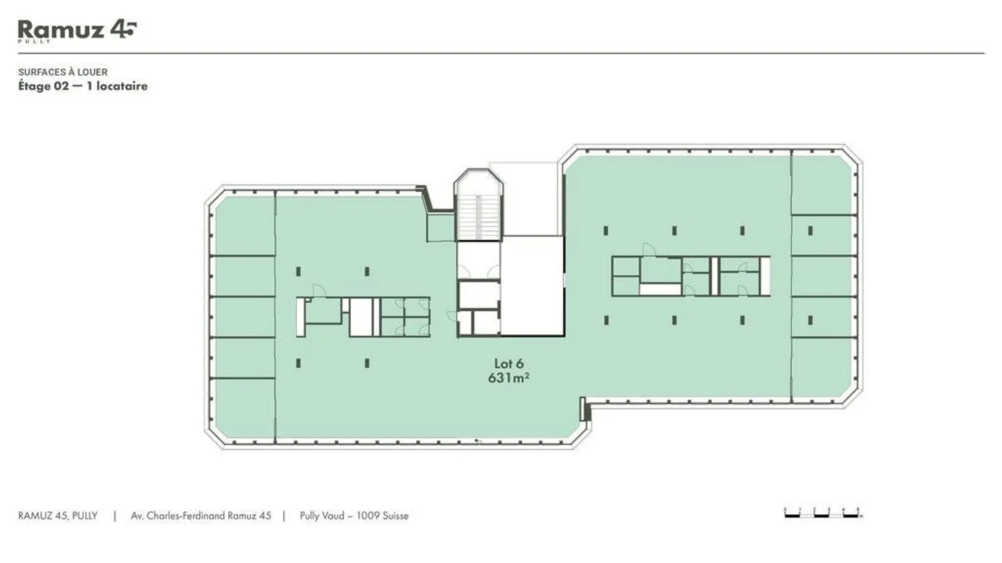
Opzioni di layout flessibili
Uffici pronti all'uso
Organizza una visita
Prenota una visita con Veuillez oggi!
Spazi flessibili in un edificio ristrutturato, efficiente e sostenibile
Affrontato con un approccio sostenibile, il progetto Ramuz 45 offre un ambiente di lavoro performante e responsabile, ideale per le aziende attente al proprio impatto ambientale. Una volta ristrutturato, l'edificio raggiungerà un livello di prestazioni equivalente al marchio Minergie P, garantendo massima efficienza e un clima ambientale perfetto.
Questo edificio offre spazi commerciali distribuiti su più livelli, consentendo una grande flessibilità di layout. Tutti gli spazi sono già arredati, ...
Dettagli immobile
- Disponibile dal
- Su accordo
- Anno di ristrutturazione
- 2025



