Spazio ufficio in affitto - Chemin C.-F. Ramuz 45, 1096 Cully
Perché amerai questa proprietà
Design certificato Minergie-P
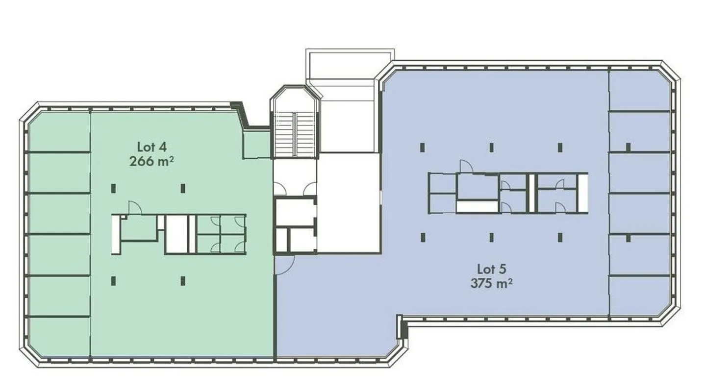
Layout flessibili per vari usi
Parcheggio interno ed esterno disponibile
Organizza una visita
Prenota una visita con Veuillez oggi!
Superfici flessibili in un edificio ad alte prestazioni e sostenibile
Molto più di un luogo di lavoro: un impegno per il domani!
Un edificio ripensato per coniugare prestazioni, sostenibilità e responsabilità. Una volta ristrutturato, l'edificio raggiungerà un livello di prestazione equivalente al marchio Minergie-P, garantendo massima efficienza e un clima ambientale perfetto.
Ramuz 45 offre spazi commerciali distribuiti su più livelli, consentendo una flessibilità di layout. Tutti gli spazi sono affittati arredati, garantendo un ambiente di lavoro immediatamente o...
Dettagli immobile
- Disponibile dal
- Su accordo
- Anno di ristrutturazione
- 2025



